о проекте

Дом впечатляет своей современностью, простором и игрой света в интерьере благодаря обширному большому остеклению.

ЭТАЖНОСТЬ
2
ПЛОЩАДЬ
269.81 м²
1
этаж
2
этаж
ПАРАМЕТРЫ ПРОЕКТА
269.81 м²
Общая площадь
269.81 м²
1 Этаж площадь
148,79 м²
Прихожая
4 м²
Гардероб
3,88 м²
Холл+лестница
11,17 м²
Гостиная+столовая
42,51 м²
Кухня
10,80 м²
Кладовая
2,30 м²
Ванная комната
3,40 м²
1 этаж
2 этаж
все характеристики
жилой дом
Общая площадь
269.81 м²
1 Этаж площадь
148,79 м²
Прихожая
4 м²
Гардероб
3,88 м²
Холл+лестница
11,17 м²
Гостиная+столовая
42,51 м²
Кухня
10,80 м²
Кладовая
2,30 м²
Ванная комната
3,40 м²
Комната 1
17,11 м²
Техническое помещение
6 м²
Техническое помещение
8,92 м²
Гараж
35,70 м²
Терраса
16,38 м²
Терраса
115,10 м²
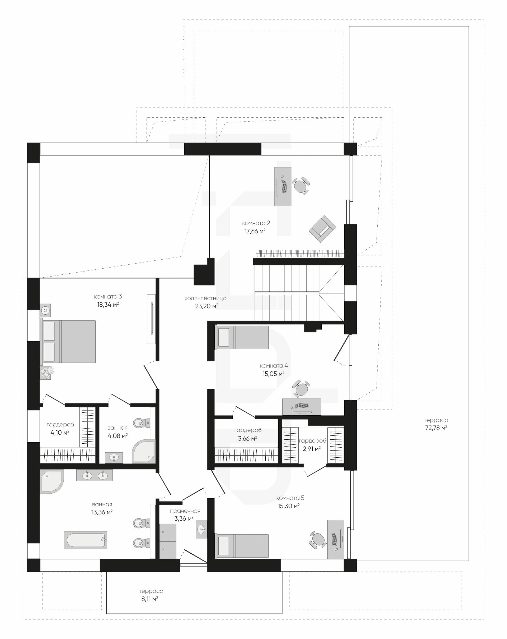
2 Этаж площадь
121,02 м²
Холл+лестница
23,20 м² (2 эт.)
Комната 2
17,66 м² (2 эт.)
Комната 3
18,34 м² (2 эт.)
Ванная комната
4,08 м² (2 эт.)
Гардероб
4,10 м² (2 эт.)
Комната 4
15,05 м² (2 эт.)
Гардероб
3,66 м² (2 эт.)
Комната 5
15,30 м² (2 эт.)
Гардероб
2,91 м² (2 эт.)
Прачечная
3,36 м² (2 эт.)
Ванная комната
13,36 м² (2 эт.)
Терраса
72,78 м² (2 эт.)
Терраса
8,11 м² (2 эт.)
планировка
все характеристики
все характеристики
жилой дом
Общая площадь
269.81 м²
1 Этаж площадь
148,79 м²
Прихожая
4 м²
Гардероб
3,88 м²
Холл+лестница
11,17 м²
Гостиная+столовая
42,51 м²
Кухня
10,80 м²
Кладовая
2,30 м²
Ванная комната
3,40 м²
Комната 1
17,11 м²
Техническое помещение
6 м²
Техническое помещение
8,92 м²
Гараж
35,70 м²
Терраса
16,38 м²
Терраса
115,10 м²
2 Этаж площадь
121,02 м²
Холл+лестница
23,20 м² (2 эт.)
Комната 2
17,66 м² (2 эт.)
Комната 3
18,34 м² (2 эт.)
Ванная комната
4,08 м² (2 эт.)
Гардероб
4,10 м² (2 эт.)
Комната 4
15,05 м² (2 эт.)
Гардероб
3,66 м² (2 эт.)
Комната 5
15,30 м² (2 эт.)
Гардероб
2,91 м² (2 эт.)
Прачечная
3,36 м² (2 эт.)
Ванная комната
13,36 м² (2 эт.)
Терраса
72,78 м² (2 эт.)
Терраса
8,11 м² (2 эт.)
экстерьер
Остались вопросы?
Напиши нам.
Наш ведущий инженер свяжется с вами в ближайшее время.
Обязательно к заполнению
Обязательно к заполнению
ДАННЫЕ ПОЛУЧЕНЫ

данные успешно отправлены

Ведущий инженер компании свяжется с вами в ближайшее время.
мы используем файлы cookie
Используя сайт april-dom.ru, Вы соглашаетесь с использованием файлов cookie, которые указаны в Политике обработки Персональных данных.
/projects/a102/