а307
Проект современного одноэтажного дома в стиле минимализм.
Дом с двускатными, взаимопроникающими крышами разной высоты, покрытыми серой черепицей. Основной фасад белый, что придает зданию чистый и свежий вид. Гаражная секция, входная группа и терраса выделена использованием деревянной отделки, что добавляет уют и теплоту общему облику дома.
Дом с двускатными, взаимопроникающими крышами разной высоты, покрытыми серой черепицей. Основной фасад белый, что придает зданию чистый и свежий вид. Гаражная секция, входная группа и терраса выделена использованием деревянной отделки, что добавляет уют и теплоту общему облику дома.
о проекте
Входная зона оборудована небольшой ажурной перголой и прикрывается с одной стороны гаражом на две машины. Большая терраса расположена в другой части здания, куда есть выход из просторной гостиной и одной из спален.
ЭТАЖНОСТЬ
1
ПЛОЩАДЬ
193.80 м²
ПАРАМЕТРЫ ПРОЕКТА
193.80 м²
Общая площадь
193.80 м²
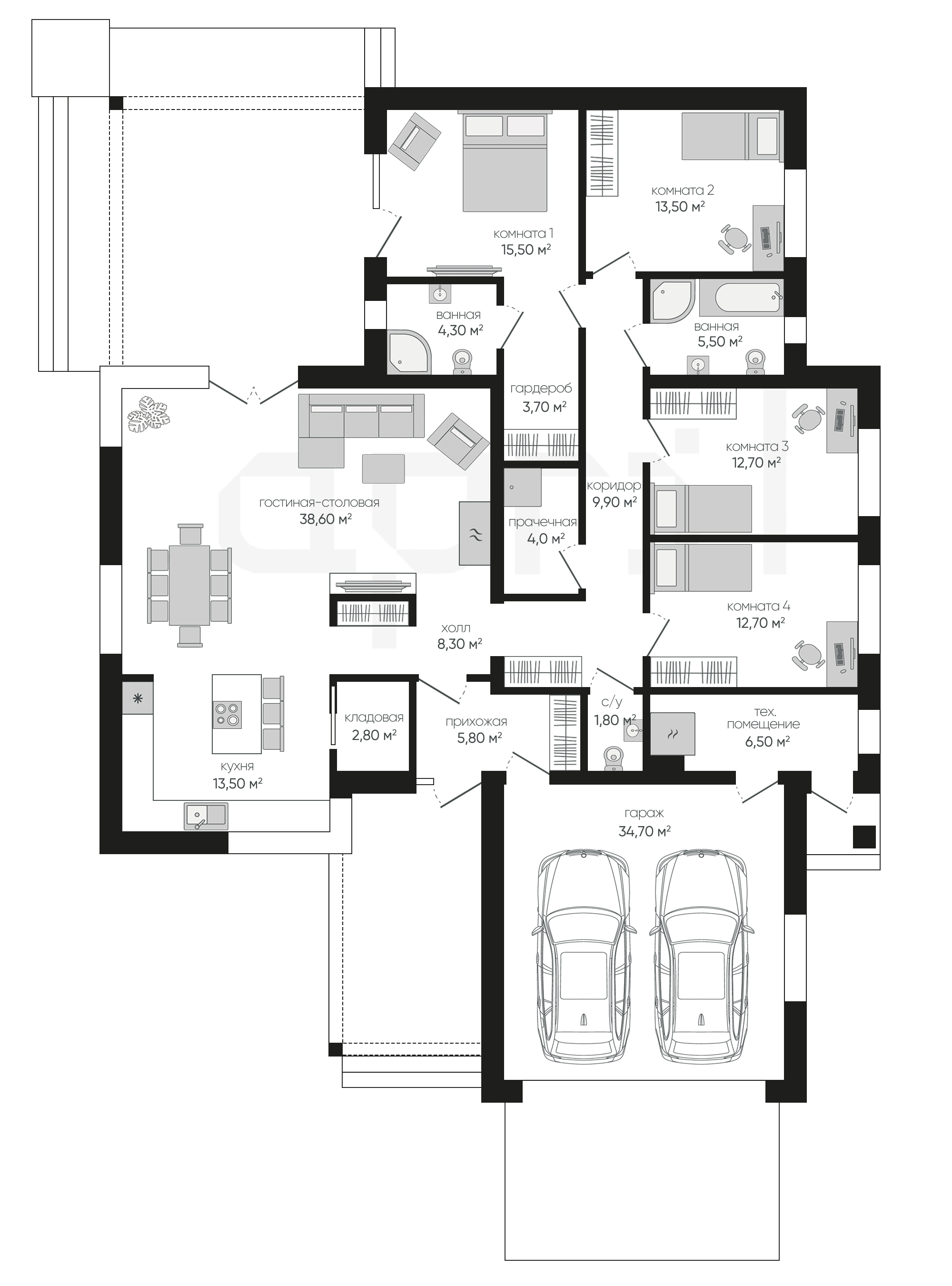
Прихожая
5,80 м²
Холл
8,30 м²
Гостиная-столовая
38,60 м²
Кухня
13,50 м²
Кладовая
2,80 м²
С/у
1,80 м²
Коридор
9,90 м²
Прачечная
4 м²
Остались вопросы?
Напиши нам.
Напиши нам.
Наш ведущий инженер свяжется с вами в ближайшее время.
ДАННЫЕ ПОЛУЧЕНЫ
данные успешно отправлены
Ведущий инженер компании свяжется с вами в ближайшее время.
Дома 1 этаж
Дома 2 этажа
Дома 1 этаж с гаражом
Дома 120 м2
Дома 150 м2
Дома 2 этажа с гаражом
Дома 200 м2
Дома 250 м2
Дома 3 этажа
Дома в скандинавском стиле
Дома в стиле райта
Дома в стиле хайтек
Дома до 100 м2
Дома с гаражом
Дома с мансардой
Дома с сауной
Дома 1 этаж с гаражом и террасой
Дома 1 этаж с террасой
Дома в стиле барнхаус
Дома в стиле шале
Дома из газобетона
Дома из газобетона 1 этаж
Дома из камня
Дома из керамических блоков
Дома из кирпича
Дома из пеноблоков
Дома с зимним садом
Дома с подвалом
Дома с террасой
Дома с цокольным этажом
Фахверковые дома
Дома с бассейном