а386
Проект одноэтажного дома с гаражом и современным характером сочетает в себе функциональность, стиль и гармонию с окружающей природой.
Благодаря минималистичным формам и простой архитектуре, дом выглядит элегантно и привлекательно. Темный фасад и использование красного кирпича создают интересный контраст, который подчеркивает современные тенденции в архитектуре.
Благодаря минималистичным формам и простой архитектуре, дом выглядит элегантно и привлекательно. Темный фасад и использование красного кирпича создают интересный контраст, который подчеркивает современные тенденции в архитектуре.
о проекте
Проект представляет собой гармоничное сочетание современных архитектурных решений с практичной планировкой, что делает его идеальным выбором для комфортной и стильной жизни.
ЭТАЖНОСТЬ
1
ПЛОЩАДЬ
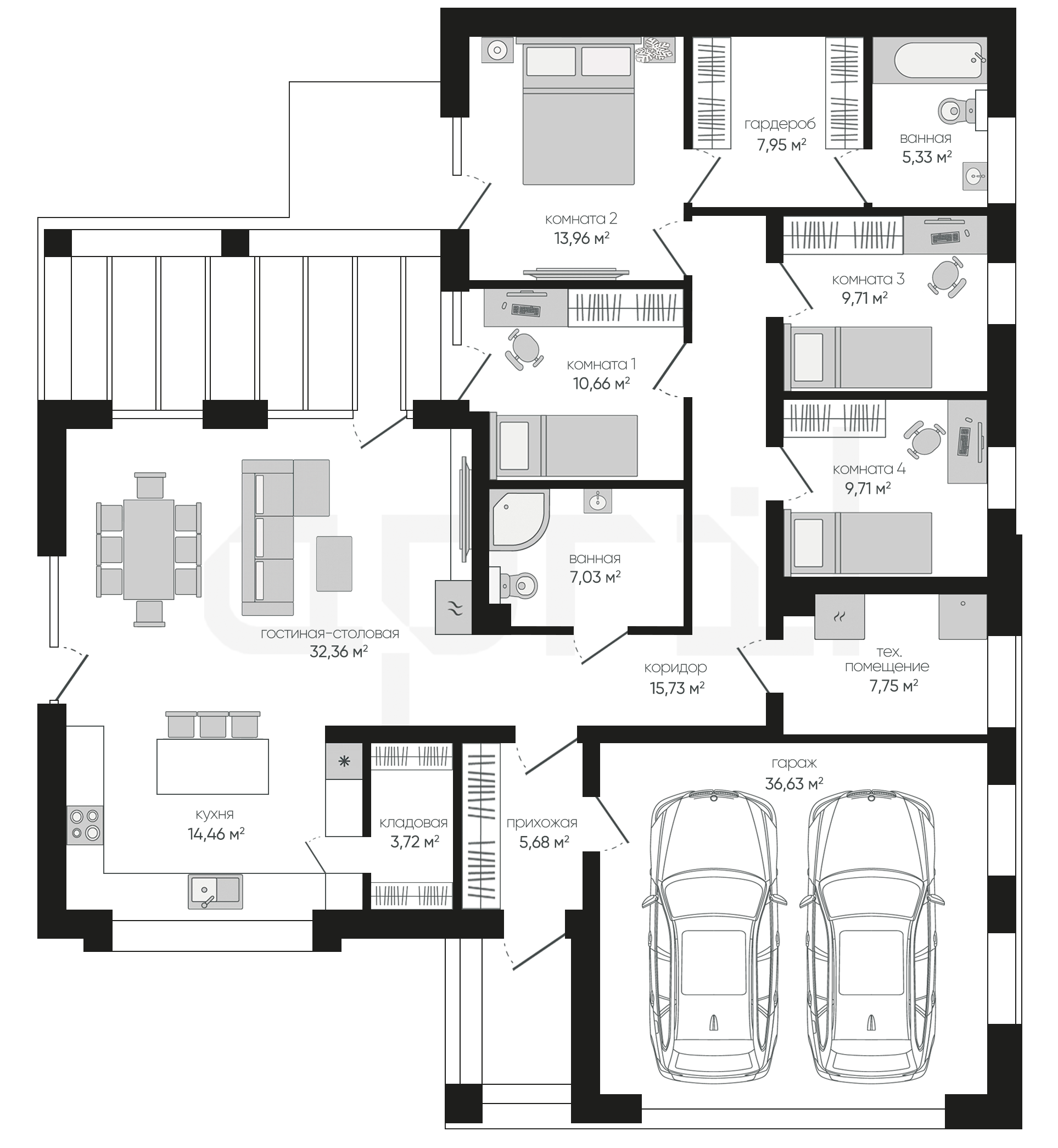
180.68 м²
ПАРАМЕТРЫ ПРОЕКТА
180.68 м²
Общая площадь
180.68 м²
Прихожая
5,68 м²
Коридор
15,73 м²
Гостиная-столовая
32,36 м²
Кухня
14,46 м²
Кладовая
3,72 м²
Ванная
7,03 м²
Комната 1
10,66 м²
Комната 2
13,96 м²
Остались вопросы?
Напиши нам.
Напиши нам.
Наш ведущий инженер свяжется с вами в ближайшее время.
ДАННЫЕ ПОЛУЧЕНЫ
данные успешно отправлены
Ведущий инженер компании свяжется с вами в ближайшее время.
Дома 1 этаж
Дома 2 этажа
Дома 1 этаж с гаражом
Дома 120 м2
Дома 150 м2
Дома 2 этажа с гаражом
Дома 200 м2
Дома 250 м2
Дома 3 этажа
Дома в скандинавском стиле
Дома в стиле райта
Дома в стиле хайтек
Дома до 100 м2
Дома с гаражом
Дома с мансардой
Дома с сауной
Дома 1 этаж с гаражом и террасой
Дома 1 этаж с террасой
Дома в стиле барнхаус
Дома в стиле шале
Дома из газобетона
Дома из газобетона 1 этаж
Дома из камня
Дома из керамических блоков
Дома из кирпича
Дома из пеноблоков
Дома с зимним садом
Дома с подвалом
Дома с террасой
Дома с цокольным этажом
Фахверковые дома
Дома с бассейном