а449
Проект современного двухэтажного дома с гаражом и террасой.
Комбинированный фасад сочетает белую гладкую штукатурку и текстурный серый «бетон», что создает динамику. Красный кирпич в качестве акцента добавляет тепла и делает образ дома более уютным и завершенным.
Плоская крыша подчеркивает минималистичный облик здания и добавляет современности.
Комбинированный фасад сочетает белую гладкую штукатурку и текстурный серый «бетон», что создает динамику. Красный кирпич в качестве акцента добавляет тепла и делает образ дома более уютным и завершенным.
Плоская крыша подчеркивает минималистичный облик здания и добавляет современности.
о проекте
Двухэтажный дом предназначен для узкого участка, который также может быть построен на краю участка. Это отдельно стоящий дом с возможностью строительства сблокированного дома.
ЭТАЖНОСТЬ
2
ПЛОЩАДЬ
137.33 м²
ПАРАМЕТРЫ ПРОЕКТА
137.33 м²
Общая площадь
137.33 м²
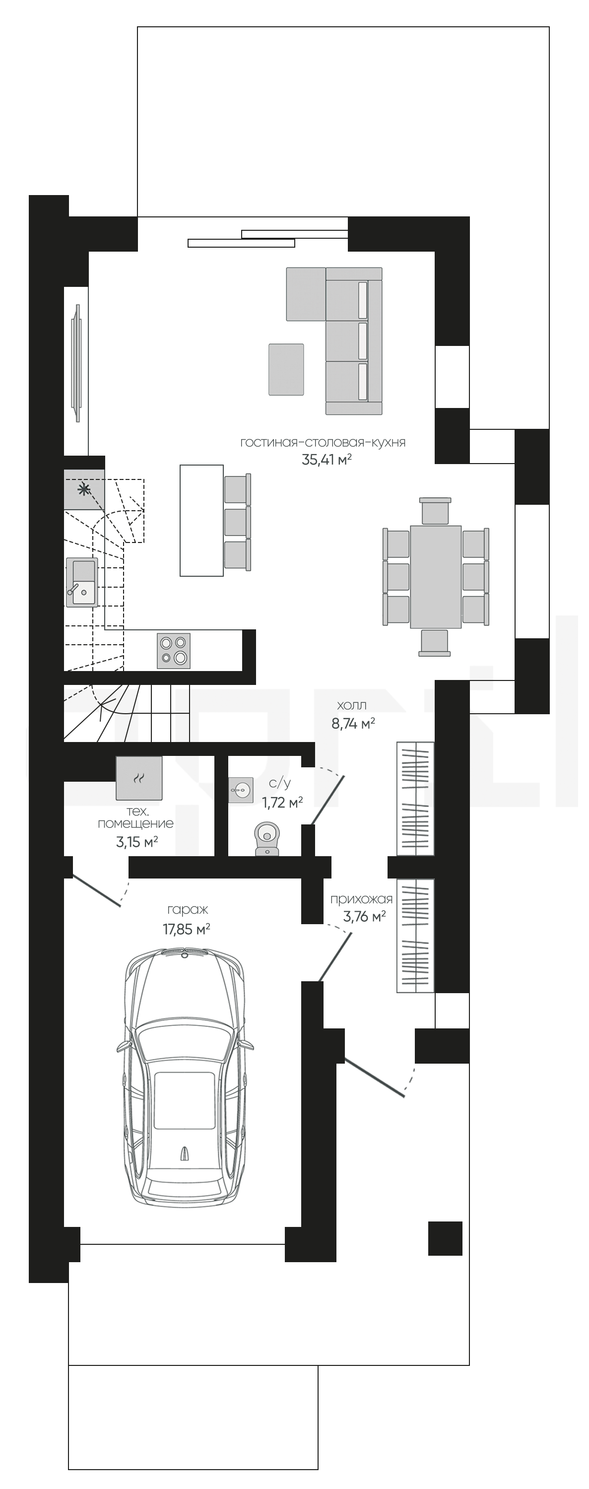
1 Этаж площадь
70,63 м²
Прихожая
3,76 м²
Холл
8,74 м²
Гостиная-столовая-кухня
35,41 м²
С/у
1,72 м²
Техническое помещение
3,15 м²
Гараж
17,85 м²
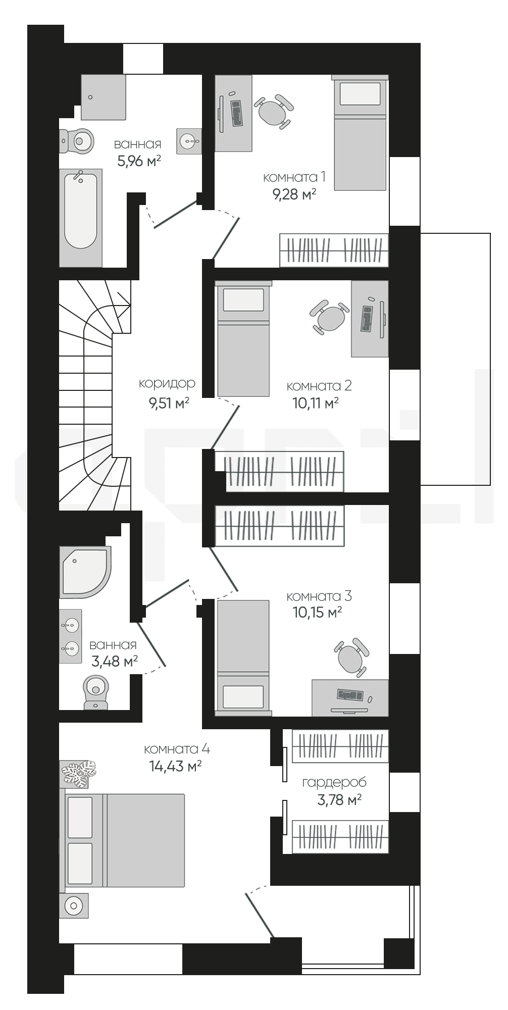
2 Этаж площадь
66,70 м²
Остались вопросы?
Напиши нам.
Напиши нам.
Наш ведущий инженер свяжется с вами в ближайшее время.
ДАННЫЕ ПОЛУЧЕНЫ
данные успешно отправлены
Ведущий инженер компании свяжется с вами в ближайшее время.
Дома 1 этаж
Дома 2 этажа
Дома 1 этаж с гаражом
Дома 120 м2
Дома 150 м2
Дома 2 этажа с гаражом
Дома 200 м2
Дома 250 м2
Дома 3 этажа
Дома в скандинавском стиле
Дома в стиле райта
Дома в стиле хайтек
Дома до 100 м2
Дома с гаражом
Дома с мансардой
Дома с сауной
Дома 1 этаж с гаражом и террасой
Дома 1 этаж с террасой
Дома в стиле барнхаус
Дома в стиле шале
Дома из газобетона
Дома из газобетона 1 этаж
Дома из камня
Дома из керамических блоков
Дома из кирпича
Дома из пеноблоков
Дома с зимним садом
Дома с подвалом
Дома с террасой
Дома с цокольным этажом
Фахверковые дома
Дома с бассейном