а450
Проект современного одноэтажного дома с гаражом и террасой.
У дома плоская кровля, что подчеркивает его современный вид и горизонтальную ориентацию.
В отделке фасада использованы контрастные материалы и цвета. Часть стен облицована светлым декоративным кирпичом, а другие секции имеют гладкую штукатурку белого, серого и яркого желтого цветов. Это создает динамичный и выразительный облик.
У дома плоская кровля, что подчеркивает его современный вид и горизонтальную ориентацию.
В отделке фасада использованы контрастные материалы и цвета. Часть стен облицована светлым декоративным кирпичом, а другие секции имеют гладкую штукатурку белого, серого и яркого желтого цветов. Это создает динамичный и выразительный облик.
о проекте
Проект имеет большие панорамные окна в гостиной зоне и крытую террасу, что обеспечивает обилие естественного света и визуально объединяет внутреннее и внешнее пространство.
ЭТАЖНОСТЬ
1
ПЛОЩАДЬ
242.26 м²
ПАРАМЕТРЫ ПРОЕКТА
242.26 м²
Общая площадь
242.26 м²
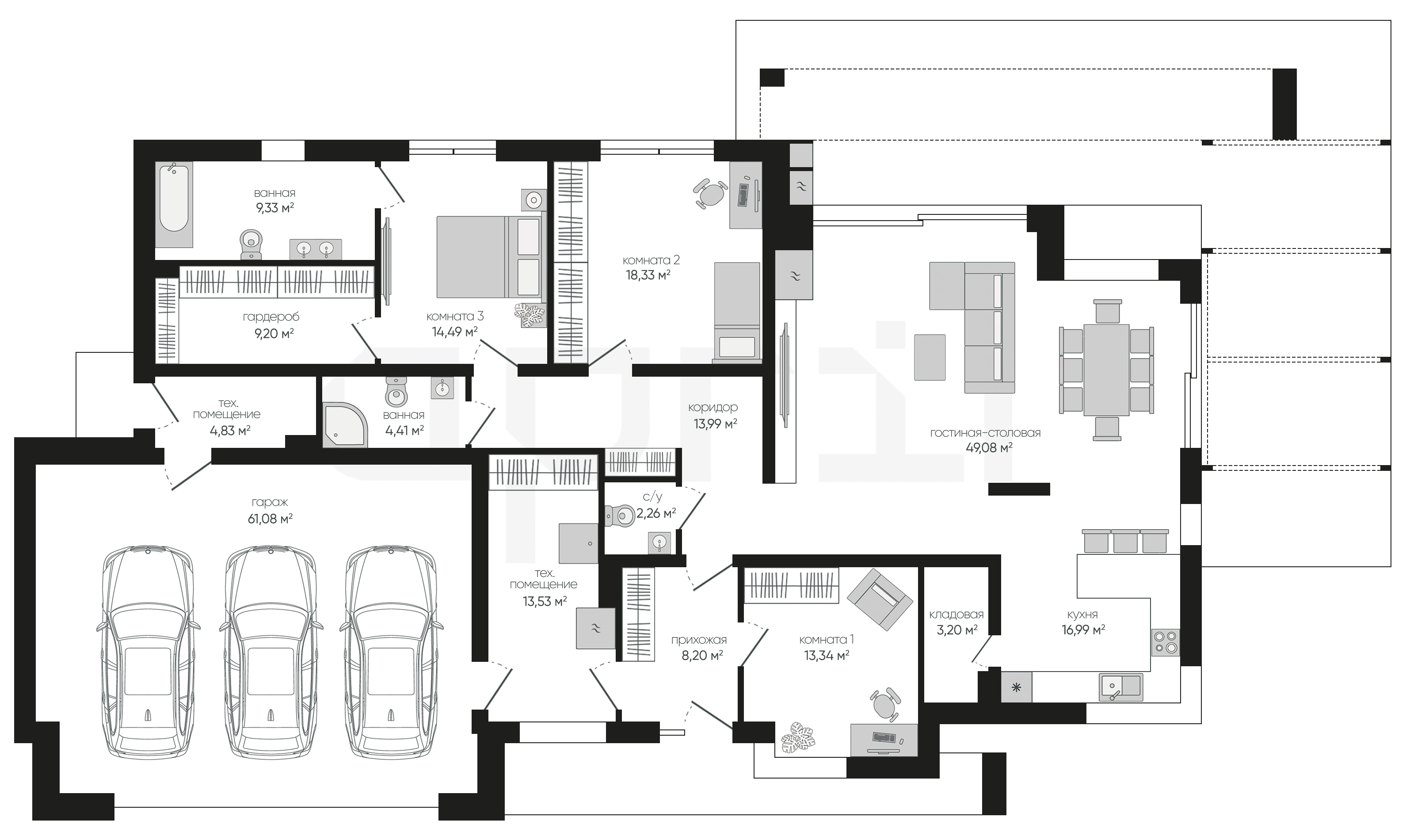
Прихожая
8,20 м²
Комната 1
13,34 м²
Коридор
13,99 м²
Гостиная-столовая
49,08 м²
Кухня
16,99 м²
Кладовая
3,20 м²
С/у
2,26 м²
Комната 2
18,33 м²
Остались вопросы?
Напиши нам.
Напиши нам.
Наш ведущий инженер свяжется с вами в ближайшее время.
ДАННЫЕ ПОЛУЧЕНЫ
данные успешно отправлены
Ведущий инженер компании свяжется с вами в ближайшее время.
Дома 1 этаж
Дома 2 этажа
Дома 1 этаж с гаражом
Дома 120 м2
Дома 150 м2
Дома 2 этажа с гаражом
Дома 200 м2
Дома 250 м2
Дома 3 этажа
Дома в скандинавском стиле
Дома в стиле райта
Дома в стиле хайтек
Дома до 100 м2
Дома с гаражом
Дома с мансардой
Дома с сауной
Дома 1 этаж с гаражом и террасой
Дома 1 этаж с террасой
Дома в стиле барнхаус
Дома в стиле шале
Дома из газобетона
Дома из газобетона 1 этаж
Дома из камня
Дома из керамических блоков
Дома из кирпича
Дома из пеноблоков
Дома с зимним садом
Дома с подвалом
Дома с террасой
Дома с цокольным этажом
Фахверковые дома
Дома с бассейном