Гоген
-
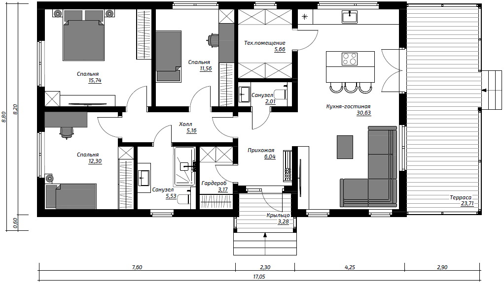
125 м2Общая площадь
-
98 м2Жилая площадь
-
от 1 949 175₽Стоимость
Просторный одноэтажный дом общей площадью 125 квадратных метров с вторым светом в гостиной зоне, тремя спальнями и большой террасой с навесом.
Варианты планировок
Комплектация и цены
Что не входит в смету
ООО «Апрель» — сертифицированный партнёр ДОМ ТЕХНОНИКОЛЬ. Мы берём на себя организацию проекта: подбор комплектации, оформление документов, согласование сроков, логистику и координацию работ на объекте, включая строительство под ключ (по выбранной комплектации).
Важно: в данную смету не входят и рассчитываются отдельно:
- монтаж домокомплекта;
- кран/спецтехника для разгрузки и установки панелей;
- доставка домокомплекта;
- подвод внешних коммуникаций;
- внутренняя отделка;
- меблировка;
- перила/ограждения;
- обшивка цоколя;
- подшив свесов и лобовая доска;
- вывоз строительного мусора.
Перечень и стоимость дополнительных работ зависят от проекта, комплектации и условий участка и фиксируются в смете.
Вдохновитесь интерьером
Ипотека на строительство дома
Подберем подходящую программу и сопроводим оформление на всех этапах.*
-
Подбор программы под ваш бюджет
-
Сопровождение ипотечного специалиста
-
Помощь с пакетом документов
-
Работаем с ведущими банками
-
Консультация бесплатно
-
Рассчитаем ежемесячный платёж
-
Поможем с одобрением и этапностью платежей
*Условия ипотеки зависят от банка, программы и профиля заемщика. Информация носит справочный характер и не является публичной офертой.