Пикассо мини

Пикассо мини

  • 103 м2
    Общая площадь
  • 82 м2
    Жилая площадь
  • от 1 804 036
    Стоимость

Пикассо мини – это уменьшенная версия популярного проекта наших архитекторов Пикассо.

Пикассо мини
от 1 804 036
  • 103 м²
    Общая площадь
  • 82 м²
    Жилая площадь
  • 1 эт.
    Количество этажей
  • 2
    Количество входов
  • 3
    Количество санузлов
  • 2
    Количество спален
  • 4
    Количество человек
Пикассо мини

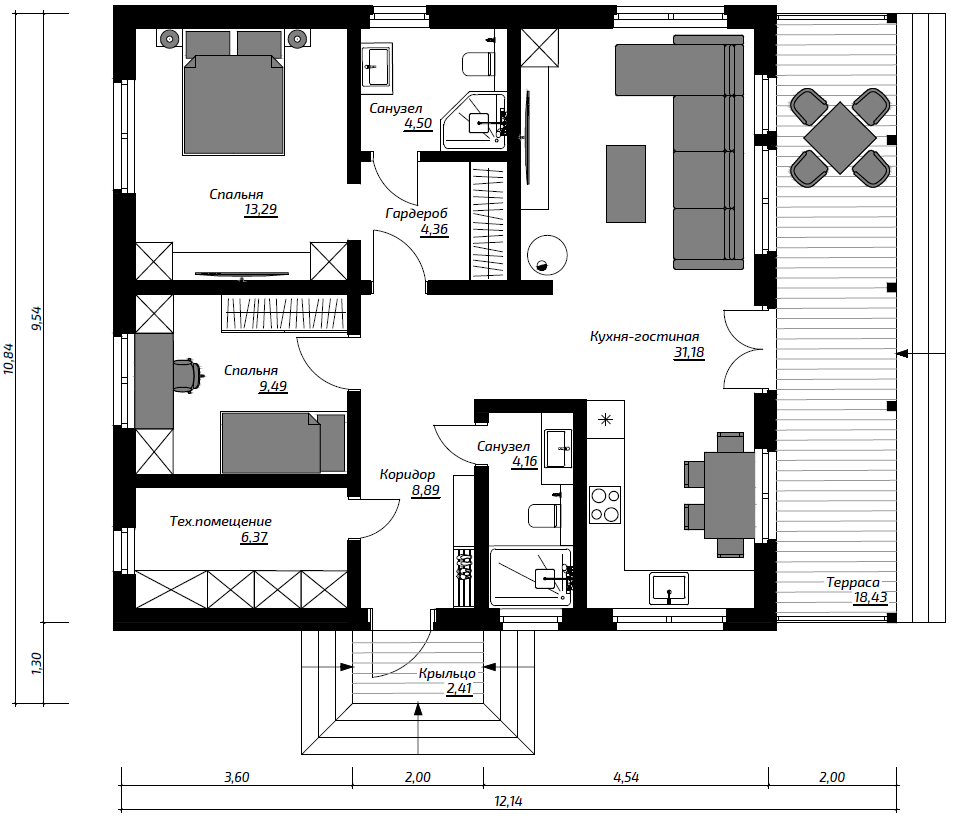
Варианты планировок

Общая площадь
103 м2
Жилая площадь
82 м2
Этажность
1 эт.
Кухня-гостиная
31.18 м2
Спальни
Спальня 1
9.49 м2
Спальня 2
13.29 м2
Холл
8.89 м2
Санузлы
Санузел 1
4.16 м2
Санузел 2
4.5 м2
Гардероб
4.36 м2
Тех. помещение
6.37 м2
Терраса
18.43 м2
Крыльцо
2.41 м2
Пикассо мини - Планировка 1

Комплектация и цены

 Преднапиленный каркас
Итого:
1 804 036 ₽

Что не входит в смету

ООО «Апрель» — сертифицированный партнёр ДОМ ТЕХНОНИКОЛЬ. Мы берём на себя организацию проекта: подбор комплектации, оформление документов, согласование сроков, логистику и координацию работ на объекте, включая строительство под ключ (по выбранной комплектации).

Важно: в данную смету не входят и рассчитываются отдельно:

  • монтаж домокомплекта;
  • кран/спецтехника для разгрузки и установки панелей;
  • доставка домокомплекта;
  • подвод внешних коммуникаций;
  • внутренняя отделка;
  • меблировка;
  • перила/ограждения;
  • обшивка цоколя;
  • подшив свесов и лобовая доска;
  • вывоз строительного мусора.

Перечень и стоимость дополнительных работ зависят от проекта, комплектации и условий участка и фиксируются в смете.

Пикассо мини

Вдохновитесь интерьером

Ипотека на строительство дома

Подберем подходящую программу и сопроводим оформление на всех этапах.*

  • Подбор программы под ваш бюджет

  • Сопровождение ипотечного специалиста

  • Помощь с пакетом документов

  • Работаем с ведущими банками

  • Консультация бесплатно

  • Рассчитаем ежемесячный платёж

  • Поможем с одобрением и этапностью платежей

  • Логотип банка
  • Логотип банка
  • Логотип банка

*Условия ипотеки зависят от банка, программы и профиля заемщика. Информация носит справочный характер и не является публичной офертой.

мы используем файлы cookie
Используя сайт april-dom.ru, Вы соглашаетесь с использованием файлов cookie, которые указаны в Политике обработки Персональных данных.