Смарт 124

Смарт 124

  • 125.9 м2
    Общая площадь
  • 103.88 м2
    Жилая площадь
  • от 2 527 571
    Стоимость

Большой и светлый каркасный дом, созданный для комфортной жизни. Вас встретит стильная прихожая, ведущая в уютную гостиную с панорамным освещением, и современная кухня, объединенная с гостиной. В доме три уютные спальни, каждая из которых — это личное пространство для отдыха, два санузла подчеркивают практичность дома, а просторная терраса станет идеальным местом для утреннего кофе.

Смарт 124
от 2 527 571
  • 125.9 м²
    Общая площадь
  • 103.88 м²
    Жилая площадь
  • 1 эт.
    Количество этажей
  • 2.9 м
    Высота потолков
  • 2
    Количество входов
  • 2
    Количество санузлов
  • 3
    Количество спален
  • 4-5
    Количество человек
Смарт 124

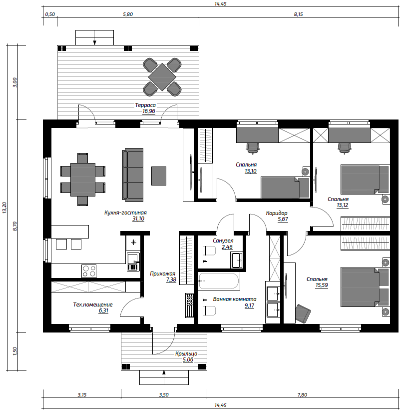
Варианты планировок

Общая площадь
125.9 м2
Жилая площадь
103.88 м2
Этажность
1 эт.
Терраса
16.96 м2
Кухня-гостиная
31.1 м2
Спальни
Спальня 1
13.1 м2
Спальня 2
13.12 м2
Спальня 3
15.59 м2
Тех. помещение
6.31 м2
Прихожая
7.38 м2
Санузел
2.46 м2
Другое
9.17 м2
Крыльцо
5.06 м2
Коридор
5.67 м2
Смарт 124 - Планировка 1

Комплектация и цены

 Преднапиленный каркас
Итого:
2 527 571 ₽

Что не входит в смету

ООО «Апрель» — сертифицированный партнёр ДОМ ТЕХНОНИКОЛЬ. Мы берём на себя организацию проекта: подбор комплектации, оформление документов, согласование сроков, логистику и координацию работ на объекте, включая строительство под ключ (по выбранной комплектации).

Важно: в данную смету не входят и рассчитываются отдельно:

  • монтаж домокомплекта;
  • кран/спецтехника для разгрузки и установки панелей;
  • доставка домокомплекта;
  • подвод внешних коммуникаций;
  • внутренняя отделка;
  • меблировка;
  • перила/ограждения;
  • обшивка цоколя;
  • подшив свесов и лобовая доска;
  • вывоз строительного мусора.

Перечень и стоимость дополнительных работ зависят от проекта, комплектации и условий участка и фиксируются в смете.

Смарт 124

Ипотека на строительство дома

Подберем подходящую программу и сопроводим оформление на всех этапах.*

  • Подбор программы под ваш бюджет

  • Сопровождение ипотечного специалиста

  • Помощь с пакетом документов

  • Работаем с ведущими банками

  • Консультация бесплатно

  • Рассчитаем ежемесячный платёж

  • Поможем с одобрением и этапностью платежей

  • Логотип банка
  • Логотип банка
  • Логотип банка

*Условия ипотеки зависят от банка, программы и профиля заемщика. Информация носит справочный характер и не является публичной офертой.

мы используем файлы cookie
Используя сайт april-dom.ru, Вы соглашаетесь с использованием файлов cookie, которые указаны в Политике обработки Персональных данных.