Смарт 142

Смарт 142

  • 142.3 м2
    Общая площадь
  • 103.84 м2
    Жилая площадь
  • от 2 509 452
    Стоимость

Просторный и стильный дом, где каждая деталь продумана для вашего комфорта. Мастер-спальня с гардеробной создаст уютное и приватное пространство. Две дополнительные спальни, светлая кухня-гостиная и просторная прихожая формируют гармоничное пространство для жизни. Два санузла и техническое помещение добавят удобства, а уютная терраса станет идеальным местом для отдыха на свежем воздухе.

Смарт 142
от 2 509 452
  • 142.3 м²
    Общая площадь
  • 103.84 м²
    Жилая площадь
  • 1 эт.
    Количество этажей
  • 3
    Количество входов
  • 2
    Количество санузлов
  • 3
    Количество спален
  • 3-6
    Количество человек
Смарт 142

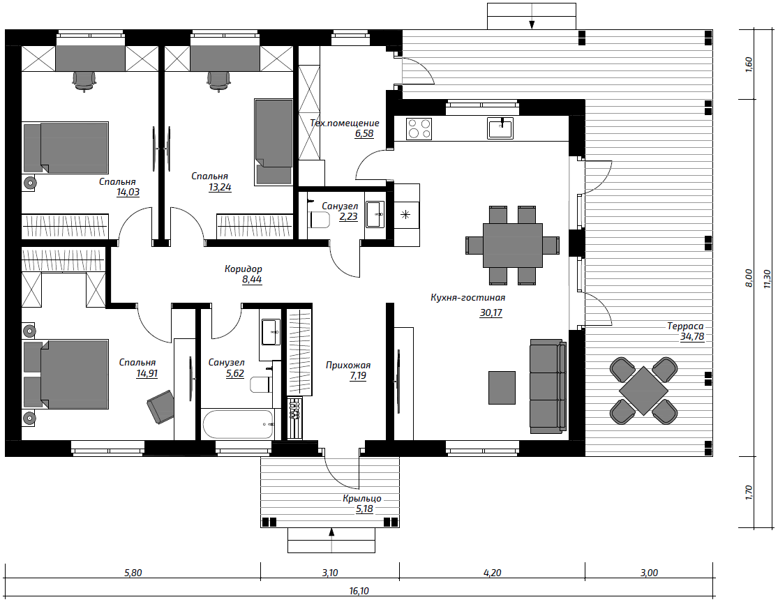
Варианты планировок

Общая площадь
142.3 м2
Жилая площадь
103.84 м2
Этажность
1 эт.
Кухня-гостиная
30.17 м2
Спальни
Спальня 1
13.24 м2
Спальня 2
14.03 м2
Спальня 3
14.91 м2
Санузлы
Санузел 1
2.23 м2
Санузел 2
5.62 м2
Коридор
8.44 м2
Прихожая
7.19 м2
Тех. помещение
6.58 м2
Терраса
34.78 м2
Крыльцо
5.18 м2
Смарт 142 - Планировка 1

Комплектация и цены

 Преднапиленный каркас
Итого:
2 509 452 ₽

Что не входит в смету

ООО «Апрель» — сертифицированный партнёр ДОМ ТЕХНОНИКОЛЬ. Мы берём на себя организацию проекта: подбор комплектации, оформление документов, согласование сроков, логистику и координацию работ на объекте, включая строительство под ключ (по выбранной комплектации).

Важно: в данную смету не входят и рассчитываются отдельно:

  • монтаж домокомплекта;
  • кран/спецтехника для разгрузки и установки панелей;
  • доставка домокомплекта;
  • подвод внешних коммуникаций;
  • внутренняя отделка;
  • меблировка;
  • перила/ограждения;
  • обшивка цоколя;
  • подшив свесов и лобовая доска;
  • вывоз строительного мусора.

Перечень и стоимость дополнительных работ зависят от проекта, комплектации и условий участка и фиксируются в смете.

Смарт 142

Ипотека на строительство дома

Подберем подходящую программу и сопроводим оформление на всех этапах.*

  • Подбор программы под ваш бюджет

  • Сопровождение ипотечного специалиста

  • Помощь с пакетом документов

  • Работаем с ведущими банками

  • Консультация бесплатно

  • Рассчитаем ежемесячный платёж

  • Поможем с одобрением и этапностью платежей

  • Логотип банка
  • Логотип банка
  • Логотип банка

*Условия ипотеки зависят от банка, программы и профиля заемщика. Информация носит справочный характер и не является публичной офертой.

мы используем файлы cookie
Используя сайт april-dom.ru, Вы соглашаетесь с использованием файлов cookie, которые указаны в Политике обработки Персональных данных.