Смарт 60

Смарт 60

  • 59.7 м2
    Общая площадь
  • 46.1 м2
    Жилая площадь
  • от 1 049 483
    Стоимость

Планировка включает две спальни, совмещенную кухню-гостиную и террасу. Дом оснащен двумя входами: основной вход ведет в жилую зону, дополнительный — на террасу. Пространство спроектировано для комфортного проживания, с учетом функциональности и эргономики.

Смарт 60
от 1 049 483
  • 59.7 м²
    Общая площадь
  • 46.1 м²
    Жилая площадь
  • 1 эт.
    Количество этажей
  • 2
    Количество входов
  • 1
    Количество санузлов
  • 1
    Количество спален
  • 3-4
    Количество человек
Смарт 60

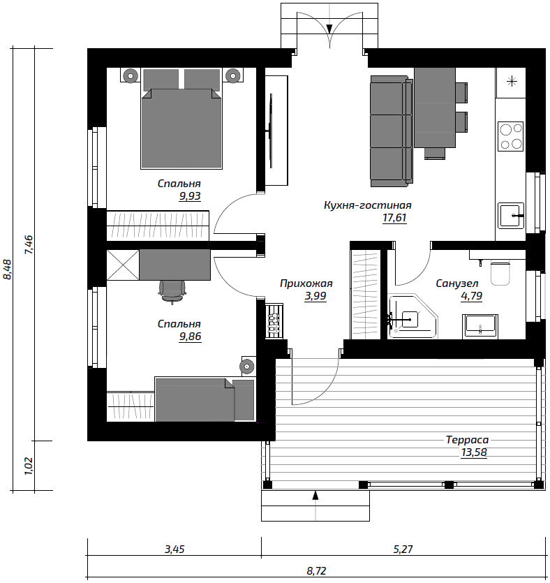
Варианты планировок

Общая площадь
59.7 м2
Жилая площадь
46.1 м2
Этажность
1 эт.
Кухня-гостиная
17.61 м2
Спальни
Спальня 1
9.93 м2
Спальня 2
9.86 м2
Прихожая
3.99 м2
Санузел
4.79 м2
Терраса
13.58 м2
Смарт 60 - Планировка 1

Комплектация и цены

Преднапиленный каркас
Итого:
1 049 483 ₽

Что не входит в смету

ООО «Апрель» — сертифицированный партнёр ДОМ ТЕХНОНИКОЛЬ. Мы берём на себя организацию проекта: подбор комплектации, оформление документов, согласование сроков, логистику и координацию работ на объекте, включая строительство под ключ (по выбранной комплектации).

Важно: в данную смету не входят и рассчитываются отдельно:

  • монтаж домокомплекта;
  • кран/спецтехника для разгрузки и установки панелей;
  • доставка домокомплекта;
  • подвод внешних коммуникаций;
  • внутренняя отделка;
  • меблировка;
  • перила/ограждения;
  • обшивка цоколя;
  • подшив свесов и лобовая доска;
  • вывоз строительного мусора.

Перечень и стоимость дополнительных работ зависят от проекта, комплектации и условий участка и фиксируются в смете.

Смарт 60

Вдохновитесь интерьером

Ипотека на строительство дома

Подберем подходящую программу и сопроводим оформление на всех этапах.*

  • Подбор программы под ваш бюджет

  • Сопровождение ипотечного специалиста

  • Помощь с пакетом документов

  • Работаем с ведущими банками

  • Консультация бесплатно

  • Рассчитаем ежемесячный платёж

  • Поможем с одобрением и этапностью платежей

  • Логотип банка
  • Логотип банка
  • Логотип банка

*Условия ипотеки зависят от банка, программы и профиля заемщика. Информация носит справочный характер и не является публичной офертой.

мы используем файлы cookie
Используя сайт april-dom.ru, Вы соглашаетесь с использованием файлов cookie, которые указаны в Политике обработки Персональных данных.