а463
Проект современного двухэтажного дома с гаражом и террасой.
Здание отличается строгой, современной формой с плоской крышей и минимальным количеством декоративных элементов. Главная особенность фасада — выступающий блок двойного гаража, отделанный деревом, который создает динамичный контраст с белыми оштукатуренными фасадами.
Использование панорамных окон подчеркивает современную эстетику и обеспечивает много естественного света.
Здание отличается строгой, современной формой с плоской крышей и минимальным количеством декоративных элементов. Главная особенность фасада — выступающий блок двойного гаража, отделанный деревом, который создает динамичный контраст с белыми оштукатуренными фасадами.
Использование панорамных окон подчеркивает современную эстетику и обеспечивает много естественного света.
о проекте
Проект представляет собой пример современного, функционального жилья, где архитектурная эстетика минимализма гармонично сочетается с продуманным внутренним устройством для большой семьи.
ЭТАЖНОСТЬ
2
ПЛОЩАДЬ
249.21 м²
ПАРАМЕТРЫ ПРОЕКТА
249.21 м²
Общая площадь
249.21 м²
1 Этаж площадь
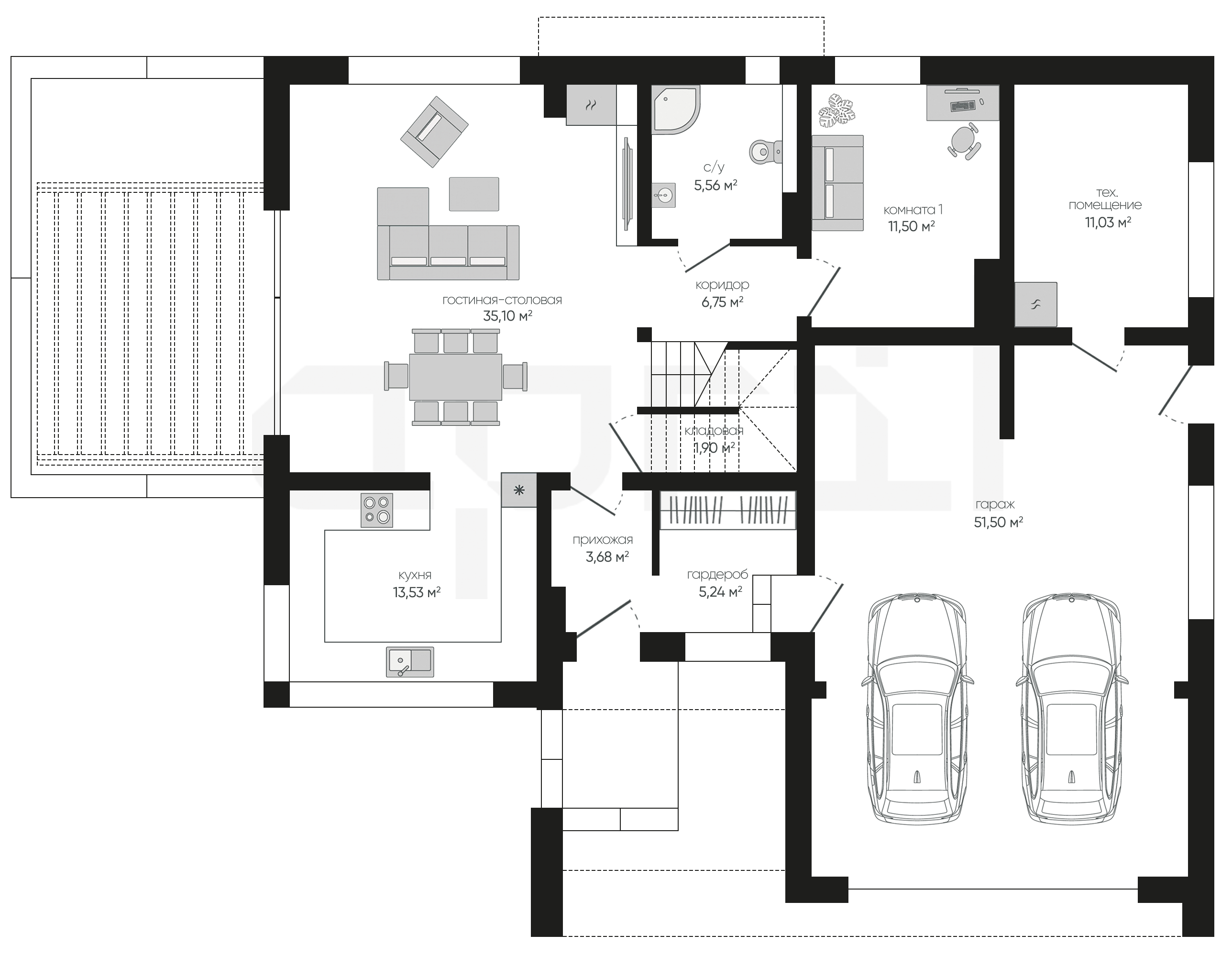
145,79 м²
Прихожая
3,68 м²
Гардероб
5,24 м²
Гостиная-столовая
35,10 м²
Кухня
13,53 м²
Кладовая
1,90 м²
Коридор
6,75 м²
С/у
5,56 м²
Остались вопросы?
Напиши нам.
Напиши нам.
Наш ведущий инженер свяжется с вами в ближайшее время.
ДАННЫЕ ПОЛУЧЕНЫ
данные успешно отправлены
Ведущий инженер компании свяжется с вами в ближайшее время.
Дома 1 этаж
Дома 2 этажа
Дома 1 этаж с гаражом
Дома 120 м2
Дома 150 м2
Дома 2 этажа с гаражом
Дома 200 м2
Дома 250 м2
Дома 3 этажа
Дома в скандинавском стиле
Дома в стиле райта
Дома в стиле хайтек
Дома до 100 м2
Дома с гаражом
Дома с мансардой
Дома с сауной
Дома 1 этаж с гаражом и террасой
Дома 1 этаж с террасой
Дома в стиле барнхаус
Дома в стиле шале
Дома из газобетона
Дома из газобетона 1 этаж
Дома из камня
Дома из керамических блоков
Дома из кирпича
Дома из пеноблоков
Дома с зимним садом
Дома с подвалом
Дома с террасой
Дома с цокольным этажом
Фахверковые дома
Дома с бассейном