а466
Проект одноэтажного дома с гаражом и террасой.
Фасад дома притягивает взгляд своей элегантностью и использованием натуральных материалов. Большая часть облицована камнем серого цвета, что придает зданию основательность, текстуру и монументальный внешний вид. Этот контраст смягчается вставками из деревянной обшивки, добавляющими тепла, уюта и гармонии с окружающей средой.
Плоская кровля и четкие линии подчеркивают современный архитектурный стиль Хайтек.
Фасад дома притягивает взгляд своей элегантностью и использованием натуральных материалов. Большая часть облицована камнем серого цвета, что придает зданию основательность, текстуру и монументальный внешний вид. Этот контраст смягчается вставками из деревянной обшивки, добавляющими тепла, уюта и гармонии с окружающей средой.
Плоская кровля и четкие линии подчеркивают современный архитектурный стиль Хайтек.
о проекте
Использование натуральных материалов, таких как камень и дерево, в интерьере дома, наряду с панорамным остеклением, подчеркивает связь с природой, что является современным решением.
ЭТАЖНОСТЬ
1
ПЛОЩАДЬ
181.34 м²
ПАРАМЕТРЫ ПРОЕКТА
181.34 м²
Общая площадь
181.34 м²
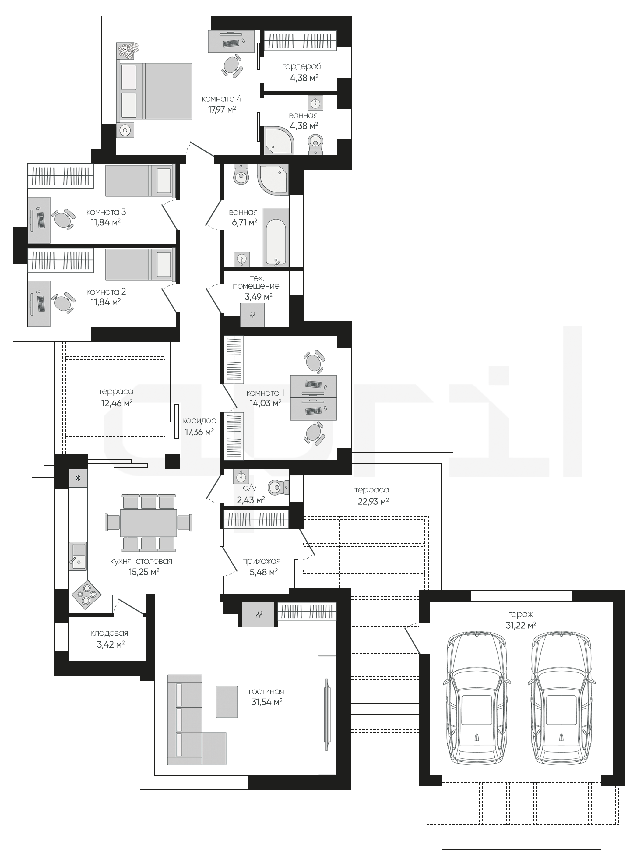
Прихожая
5,48 м²
Гостиная
31,54 м²
Кухня-столовая
15,25 м²
Кладовая
3,42 м²
С/у
2,43 м²
Коридор
17,36 м²
Комната 1
14,03 м²
Комната 2
11,84 м²
Остались вопросы?
Напиши нам.
Напиши нам.
Наш ведущий инженер свяжется с вами в ближайшее время.
ДАННЫЕ ПОЛУЧЕНЫ
данные успешно отправлены
Ведущий инженер компании свяжется с вами в ближайшее время.
Дома 1 этаж
Дома 2 этажа
Дома 1 этаж с гаражом
Дома 120 м2
Дома 150 м2
Дома 2 этажа с гаражом
Дома 200 м2
Дома 250 м2
Дома 3 этажа
Дома в скандинавском стиле
Дома в стиле райта
Дома в стиле хайтек
Дома до 100 м2
Дома с гаражом
Дома с мансардой
Дома с сауной
Дома 1 этаж с гаражом и террасой
Дома 1 этаж с террасой
Дома в стиле барнхаус
Дома в стиле шале
Дома из газобетона
Дома из газобетона 1 этаж
Дома из камня
Дома из керамических блоков
Дома из кирпича
Дома из пеноблоков
Дома с зимним садом
Дома с подвалом
Дома с террасой
Дома с цокольным этажом
Фахверковые дома
Дома с бассейном