а475
Проект небольшого одноэтажного дома с плоской крышей и террасой.
Гладкие светлые стены контрастируют с вертикальными деревянными рейками, которые добавляют архитектуре «теплоты» и природности.
Акцент сделан на минималистичной стальной перголе над входом и террасой, которая защищает от осадков и служит декоративным элементом.
Гладкие светлые стены контрастируют с вертикальными деревянными рейками, которые добавляют архитектуре «теплоты» и природности.
Акцент сделан на минималистичной стальной перголе над входом и террасой, которая защищает от осадков и служит декоративным элементом.
о проекте
Дизайн дома выполнен в современном стиле с элементами Хайтек. Его облик строится на сочетании простых геометрических форм и контрастных фактур. Дом подходит как для постоянного проживания небольшой семьи, так и в качестве современной дачи.
ЭТАЖНОСТЬ
1
ПЛОЩАДЬ
80.24 м²
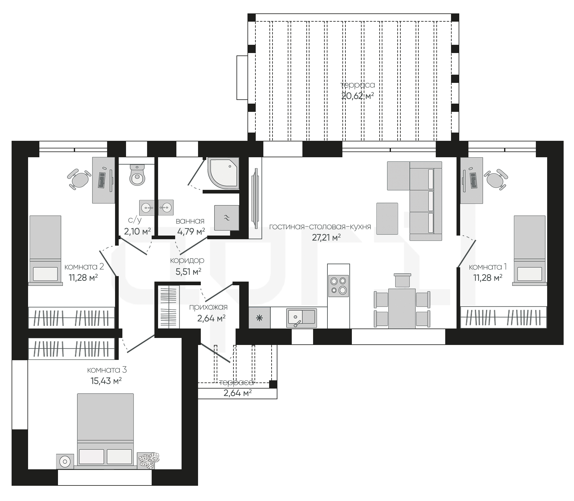
ПАРАМЕТРЫ ПРОЕКТА
80.24 м²
Общая площадь
80.24 м²
Прихожая
2,64 м²
Коридор
5,51 м²
Гостиная-столовая-кухня
27,21 м²
Комната 1
11,28 м²
Ванная
4,79 м²
С/у
2,10 м²
Комната 2
11,28 м²
Комната 3
15,43 м²
Остались вопросы?
Напиши нам.
Напиши нам.
Наш ведущий инженер свяжется с вами в ближайшее время.
ДАННЫЕ ПОЛУЧЕНЫ
данные успешно отправлены
Ведущий инженер компании свяжется с вами в ближайшее время.
Дома 1 этаж
Дома 2 этажа
Дома 1 этаж с гаражом
Дома 120 м2
Дома 150 м2
Дома 2 этажа с гаражом
Дома 200 м2
Дома 250 м2
Дома 3 этажа
Дома в скандинавском стиле
Дома в стиле райта
Дома в стиле хайтек
Дома до 100 м2
Дома с гаражом
Дома с мансардой
Дома с сауной
Дома 1 этаж с гаражом и террасой
Дома 1 этаж с террасой
Дома в стиле барнхаус
Дома в стиле шале
Дома из газобетона
Дома из газобетона 1 этаж
Дома из камня
Дома из керамических блоков
Дома из кирпича
Дома из пеноблоков
Дома с зимним садом
Дома с подвалом
Дома с террасой
Дома с цокольным этажом
Фахверковые дома
Дома с бассейном