а486
Проект небольшого одноэтажного дома с плоской крышей и террасой.
Почти вся фронтальная стена представляет собой стеклянную витрину, что визуально расширяет пространство и наполняет дом светом.
В отделке фасадов используются контрастные текстуры — светлая штукатурка сочетается с темным графитовым камнем, что подчеркивает строгую геометрию здания.
Почти вся фронтальная стена представляет собой стеклянную витрину, что визуально расширяет пространство и наполняет дом светом.
В отделке фасадов используются контрастные текстуры — светлая штукатурка сочетается с темным графитовым камнем, что подчеркивает строгую геометрию здания.
о проекте
Особенностью дизайна является использование больших окон, обеспечивающих много естественного света, и наличие частично крытой террасы для отдыха. Дом подходит для круглогодичного проживания, а также для сезонного использования.
ЭТАЖНОСТЬ
1
ПЛОЩАДЬ
75.03 м²
ПАРАМЕТРЫ ПРОЕКТА
75.03 м²
Общая площадь
75.03 м²
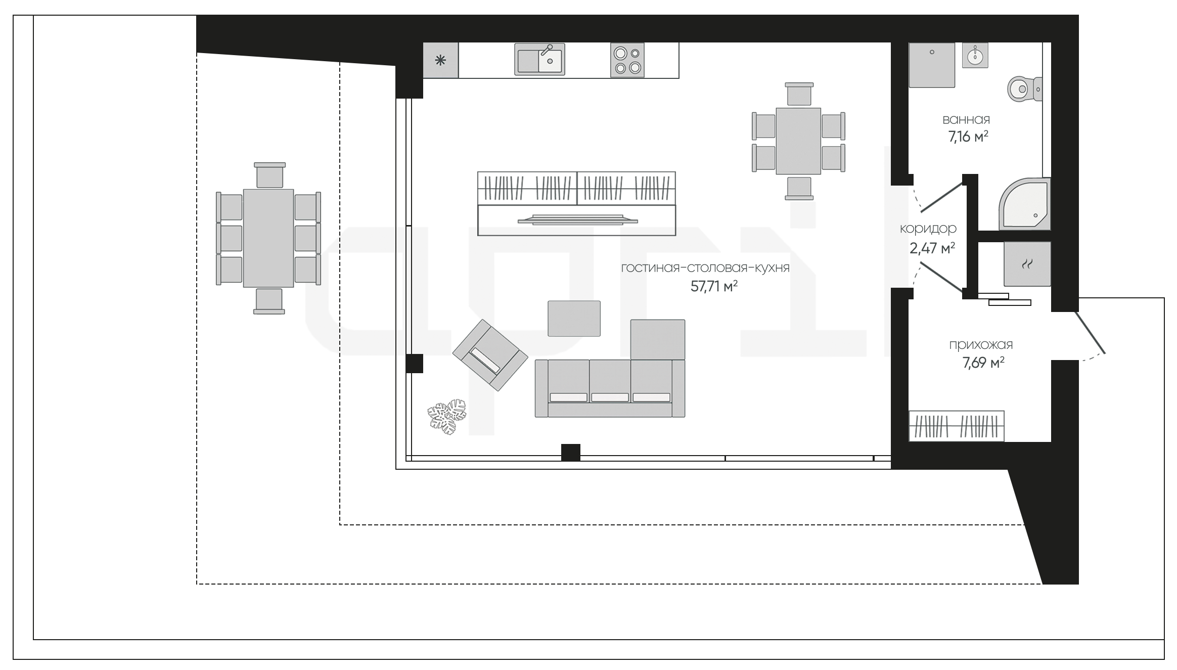
Прихожая
7,69 м²
Коридор
2,47 м²
Гостиная-столовая-кухня
57,71 м²
Ванная
7,16 м²
Остались вопросы?
Напиши нам.
Напиши нам.
Наш ведущий инженер свяжется с вами в ближайшее время.
ДАННЫЕ ПОЛУЧЕНЫ
данные успешно отправлены
Ведущий инженер компании свяжется с вами в ближайшее время.
Дома 1 этаж
Дома 2 этажа
Дома 1 этаж с гаражом
Дома 120 м2
Дома 150 м2
Дома 2 этажа с гаражом
Дома 200 м2
Дома 250 м2
Дома 3 этажа
Дома в скандинавском стиле
Дома в стиле райта
Дома в стиле хайтек
Дома до 100 м2
Дома с гаражом
Дома с мансардой
Дома с сауной
Дома 1 этаж с гаражом и террасой
Дома 1 этаж с террасой
Дома в стиле барнхаус
Дома в стиле шале
Дома из газобетона
Дома из газобетона 1 этаж
Дома из камня
Дома из керамических блоков
Дома из кирпича
Дома из пеноблоков
Дома с зимним садом
Дома с подвалом
Дома с террасой
Дома с цокольным этажом
Фахверковые дома
Дома с бассейном