о проекте

Дом спроектирован с учетом потребностей большой семьи, предлагая как приватные зоны для отдыха, так и общие просторные пространства для совместного времяпровождения. Большое количество помещений делает дом более функциональным, дает гибкость для будущих изменений и позволяет точно подстроить пространство под потребности семьи.

ЭТАЖНОСТЬ
2
ПЛОЩАДЬ
434.66 м²
1
этаж
2
этаж
ПАРАМЕТРЫ ПРОЕКТА
434.66 м²
Общая площадь
434.66 м²
1 Этаж площадь
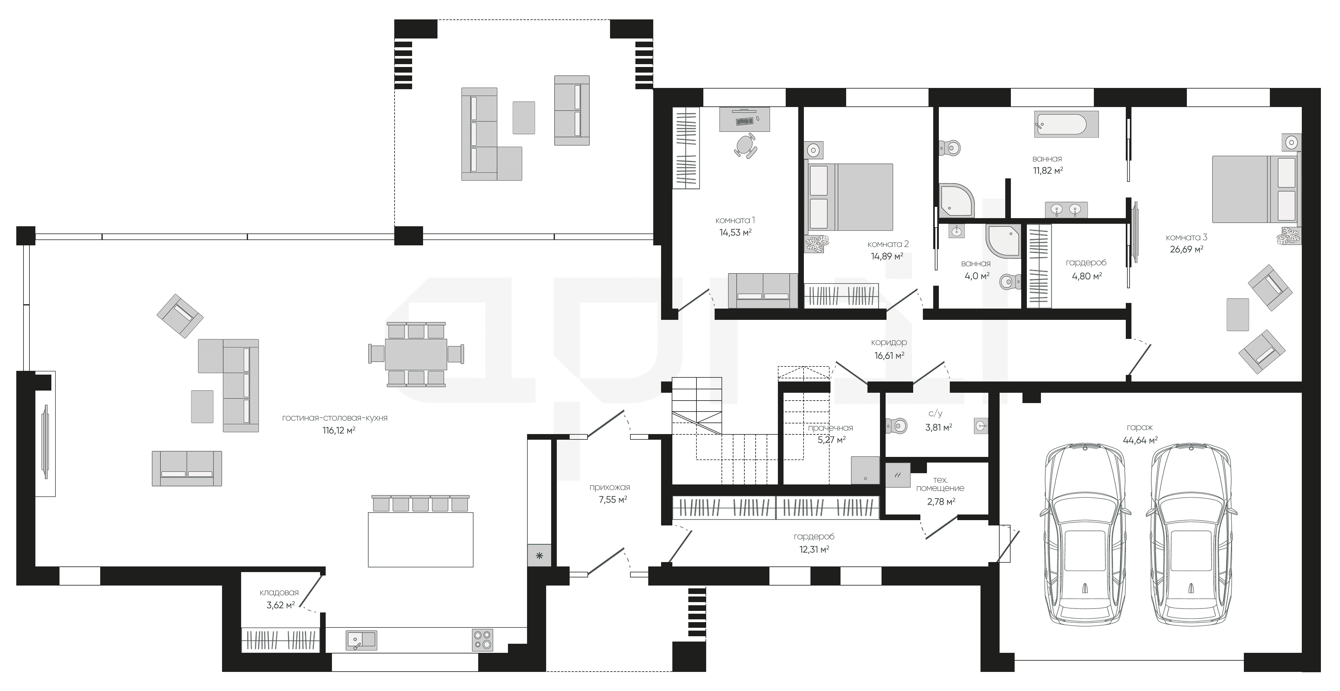
289,44 м²
Прихожая
7,55 м²
Гардероб
12,31 м²
Гостиная-столовая-кухня
116,12 м²
Кладовая
3,62 м²
Коридор
16,61 м²
Комната 1
14,53 м²
Комната 2
14,89 м²
1 этаж
2 этаж
все характеристики
жилой дом
Общая площадь
434.66 м²
1 Этаж площадь
289,44 м²
Прихожая
7,55 м²
Гардероб
12,31 м²
Гостиная-столовая-кухня
116,12 м²
Кладовая
3,62 м²
Коридор
16,61 м²
Комната 1
14,53 м²
Комната 2
14,89 м²
Ванная
4 м²
Комната 3
26,69 м²
Ванная
11,82 м²
Гардероб
4,80 м²
С/у
3,81 м²
Прачечная
5,27 м²
Техническое помещение
2,78 м²
Гараж
44,64 м²
2 Этаж площадь
145,22 м²
Коридор
18,71 м² (2 эт.)
Комната 4
17,56 м² (2 эт.)
Комната 5
17,56 м² (2 эт.)
Комната 6
17,56 м² (2 эт.)
Комната 7
17,56 м² (2 эт.)
Гардероб
3,67 м² (2 эт.)
Комната отдыха
27,75 м² (2 эт.)
Ванная
9,09 м² (2 эт.)
Ванная
9,08 м² (2 эт.)
Гардероб
6,68 м² (2 эт.)
планировка
все характеристики
все характеристики
жилой дом
Общая площадь
434.66 м²
1 Этаж площадь
289,44 м²
Прихожая
7,55 м²
Гардероб
12,31 м²
Гостиная-столовая-кухня
116,12 м²
Кладовая
3,62 м²
Коридор
16,61 м²
Комната 1
14,53 м²
Комната 2
14,89 м²
Ванная
4 м²
Комната 3
26,69 м²
Ванная
11,82 м²
Гардероб
4,80 м²
С/у
3,81 м²
Прачечная
5,27 м²
Техническое помещение
2,78 м²
Гараж
44,64 м²
2 Этаж площадь
145,22 м²
Коридор
18,71 м² (2 эт.)
Комната 4
17,56 м² (2 эт.)
Комната 5
17,56 м² (2 эт.)
Комната 6
17,56 м² (2 эт.)
Комната 7
17,56 м² (2 эт.)
Гардероб
3,67 м² (2 эт.)
Комната отдыха
27,75 м² (2 эт.)
Ванная
9,09 м² (2 эт.)
Ванная
9,08 м² (2 эт.)
Гардероб
6,68 м² (2 эт.)
экстерьер
Остались вопросы?
Напиши нам.
Наш ведущий инженер свяжется с вами в ближайшее время.
Обязательно к заполнению
Обязательно к заполнению
ДАННЫЕ ПОЛУЧЕНЫ

данные успешно отправлены

Ведущий инженер компании свяжется с вами в ближайшее время.
мы используем файлы cookie
Используя сайт april-dom.ru, Вы соглашаетесь с использованием файлов cookie, которые указаны в Политике обработки Персональных данных.
/projects/a388/