а480
Проект современного двухэтажного дома с плоской крышей, гаражом и террасой.
Дом спроектирован в современном стиле Хайтек с чистыми линиями и большими окнами.
Фасад выполнен в минималистичном стиле с использованием светлой штукатурки, серых бетонных элементов и деревянных панелей для отделки второго этажа. Одной из отличительных черт является просторная терраса на втором этаже над гаражом.
Дом спроектирован в современном стиле Хайтек с чистыми линиями и большими окнами.
Фасад выполнен в минималистичном стиле с использованием светлой штукатурки, серых бетонных элементов и деревянных панелей для отделки второго этажа. Одной из отличительных черт является просторная терраса на втором этаже над гаражом.
о проекте
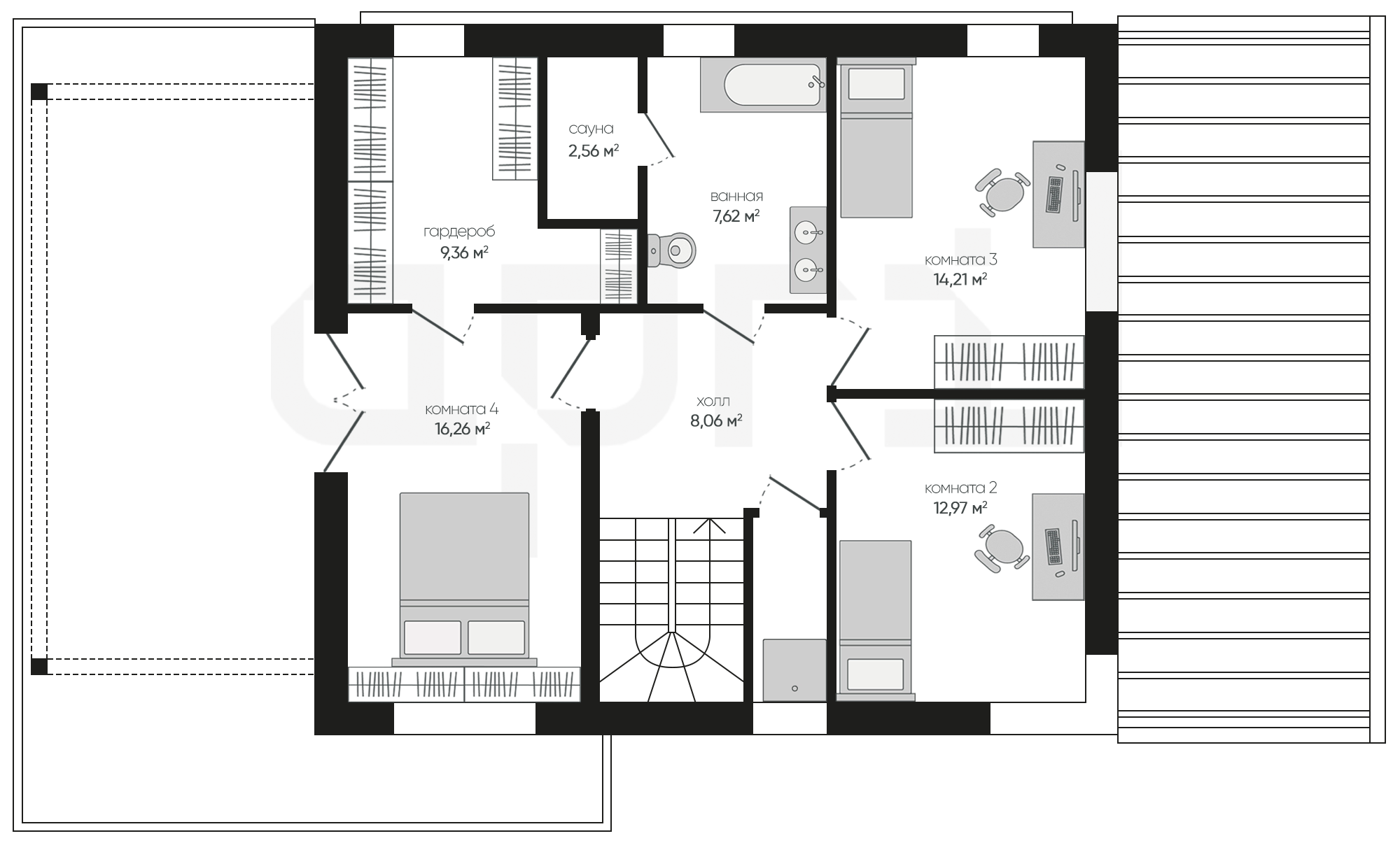
Этот дом с лаконичным фасадом и панорамным остеклением располагает просторной дневной зоной, четырьмя комнатами, гаражом и большой ванной с собственной сауной.
ЭТАЖНОСТЬ
2
ПЛОЩАДЬ
180.30 м²
ПАРАМЕТРЫ ПРОЕКТА
180.30 м²
Общая площадь
180.30 м²
1 Этаж площадь
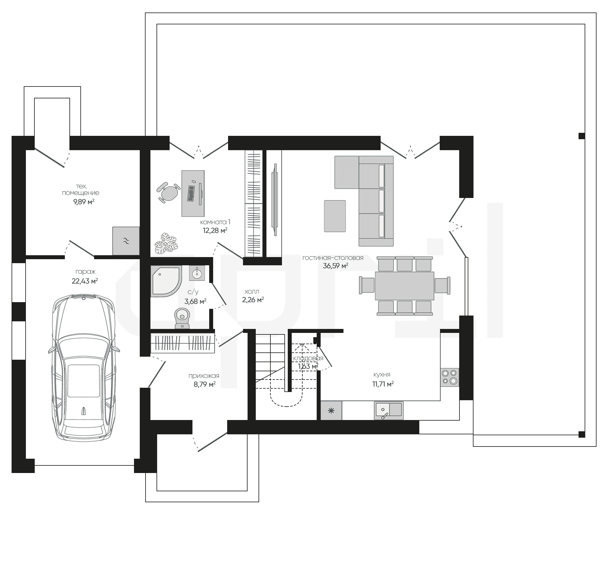
109,26 м²
Прихожая
8,79 м²
Холл
2,26 м²
Гостиная-столовая
36,59 м²
Кухня
11,71 м²
Кладовая
1,63 м²
Комната 1
12,28 м²
С/у
3,68 м²
Остались вопросы?
Напиши нам.
Напиши нам.
Наш ведущий инженер свяжется с вами в ближайшее время.
ДАННЫЕ ПОЛУЧЕНЫ
данные успешно отправлены
Ведущий инженер компании свяжется с вами в ближайшее время.
Дома 1 этаж
Дома 2 этажа
Дома 1 этаж с гаражом
Дома 120 м2
Дома 150 м2
Дома 2 этажа с гаражом
Дома 200 м2
Дома 250 м2
Дома 3 этажа
Дома в скандинавском стиле
Дома в стиле райта
Дома в стиле хайтек
Дома до 100 м2
Дома с гаражом
Дома с мансардой
Дома с сауной
Дома 1 этаж с гаражом и террасой
Дома 1 этаж с террасой
Дома в стиле барнхаус
Дома в стиле шале
Дома из газобетона
Дома из газобетона 1 этаж
Дома из камня
Дома из керамических блоков
Дома из кирпича
Дома из пеноблоков
Дома с зимним садом
Дома с подвалом
Дома с террасой
Дома с цокольным этажом
Фахверковые дома
Дома с бассейном