о проекте

Проект сочетает современную архитектуру и функциональность, создавая комфортное пространство для жизни. Несомненным плюсом этого дома является: сауна, тренажерный зал и большая площадь террасы.

ЭТАЖНОСТЬ
2
ПЛОЩАДЬ
354.25 м²
1
этаж
2
этаж
ПАРАМЕТРЫ ПРОЕКТА
354.25 м²
Общая площадь
354.25 м²
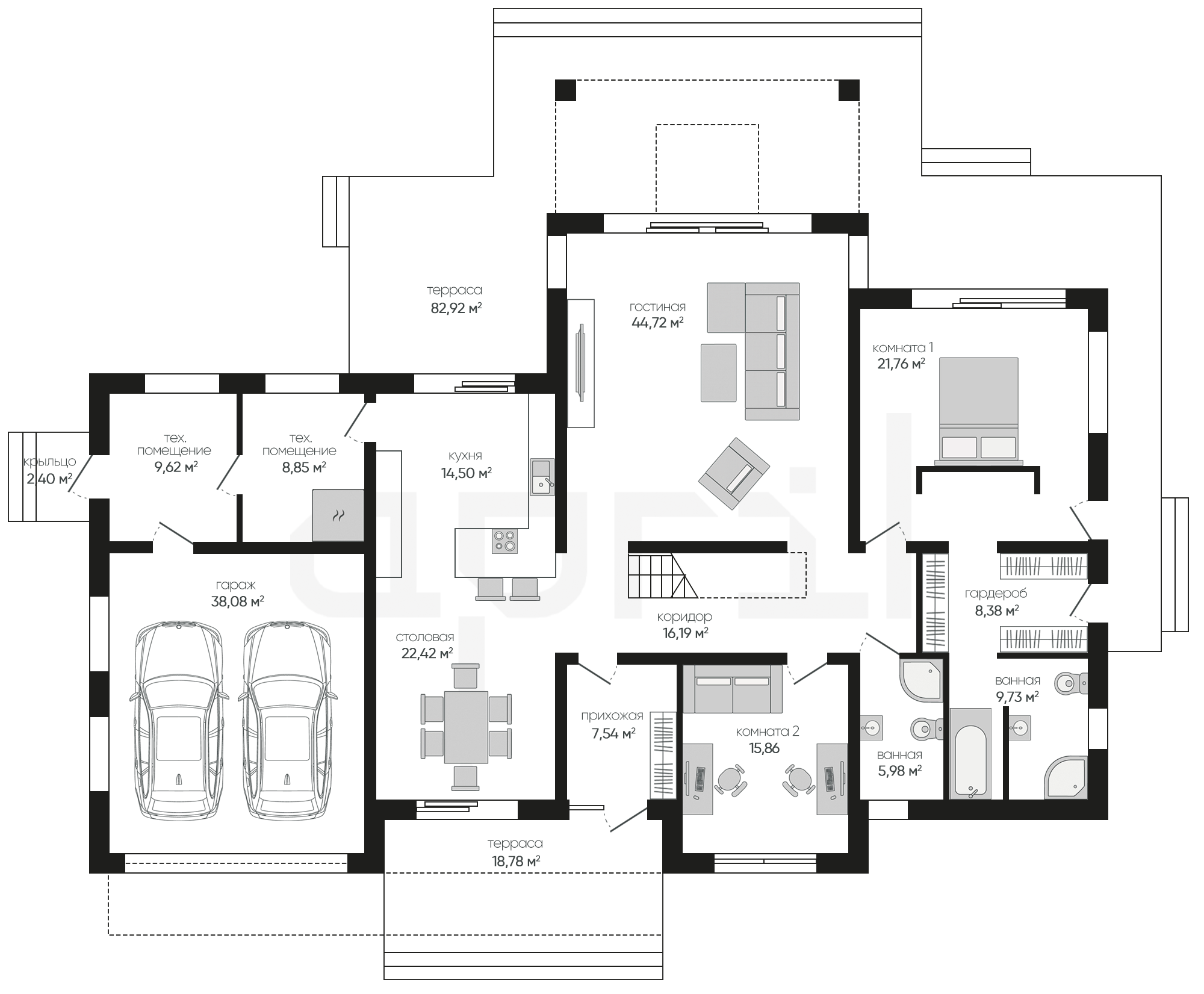
1 Этаж площадь
217,65 м²
Прихожая
7,54 м²
Коридор
16,19 м²
Гостиная
44,72 м²
Столовая
22,42 м²
Кухня
14,50 м²
Комната 1
21,76 м²
Гардероб
8,38 м²
1 этаж
2 этаж
все характеристики
жилой дом
Общая площадь
354.25 м²
1 Этаж площадь
217,65 м²
Прихожая
7,54 м²
Коридор
16,19 м²
Гостиная
44,72 м²
Столовая
22,42 м²
Кухня
14,50 м²
Комната 1
21,76 м²
Гардероб
8,38 м²
Ванная
9,73 м²
Комната 2
15,86 м²
Техническое помещение
8,85 м²
Техническое помещение
9,62 м²
Гараж
38,08 м²
Терраса
18,78 м²
Терраса
82,92 м²
Крыльцо
2,40 м²
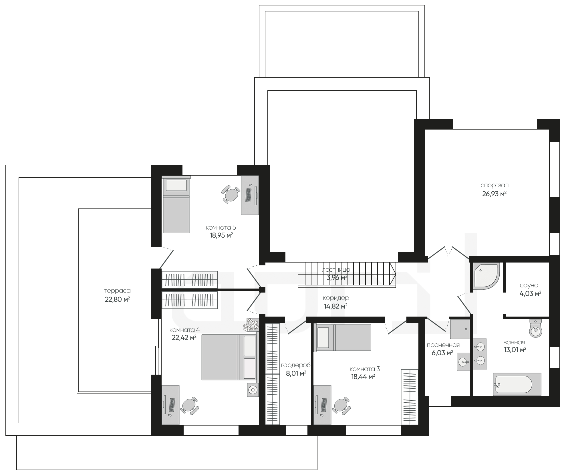
2 Этаж площадь
136,60 м²
Лестница
3,96 м² (2 эт.)
Коридор
14,82 м² (2 эт.)
Спортзал
26,93 м² (2 эт.)
Ванная
13,01 м² (2 эт.)
Сауна
4,03 м² (2 эт.)
Прачечная
6,03 м² (2 эт.)
Комната 3
18,44 м² (2 эт.)
Гардероб
8,01 м² (2 эт.)
Комната 4
22,42 м² (2 эт.)
Комната 5
18,95 м² (2 эт.)
Терраса
22,80 м² (2 эт.)
планировка
все характеристики
все характеристики
жилой дом
Общая площадь
354.25 м²
1 Этаж площадь
217,65 м²
Прихожая
7,54 м²
Коридор
16,19 м²
Гостиная
44,72 м²
Столовая
22,42 м²
Кухня
14,50 м²
Комната 1
21,76 м²
Гардероб
8,38 м²
Ванная
9,73 м²
Комната 2
15,86 м²
Техническое помещение
8,85 м²
Техническое помещение
9,62 м²
Гараж
38,08 м²
Терраса
18,78 м²
Терраса
82,92 м²
Крыльцо
2,40 м²
2 Этаж площадь
136,60 м²
Лестница
3,96 м² (2 эт.)
Коридор
14,82 м² (2 эт.)
Спортзал
26,93 м² (2 эт.)
Ванная
13,01 м² (2 эт.)
Сауна
4,03 м² (2 эт.)
Прачечная
6,03 м² (2 эт.)
Комната 3
18,44 м² (2 эт.)
Гардероб
8,01 м² (2 эт.)
Комната 4
22,42 м² (2 эт.)
Комната 5
18,95 м² (2 эт.)
Терраса
22,80 м² (2 эт.)
экстерьер
гостиная-столовая
Остались вопросы?
Напиши нам.
Наш ведущий инженер свяжется с вами в ближайшее время.
Обязательно к заполнению
Обязательно к заполнению
ДАННЫЕ ПОЛУЧЕНЫ

данные успешно отправлены

Ведущий инженер компании свяжется с вами в ближайшее время.
мы используем файлы cookie
Используя сайт april-dom.ru, Вы соглашаетесь с использованием файлов cookie, которые указаны в Политике обработки Персональных данных.
/projects/a181/