о проекте

Проект включает в себя балконы, террасу на крыше, встроенный гараж и техническую зону в цокольном этаже.

ЭТАЖНОСТЬ
2
ПЛОЩАДЬ
221.40 м²
-1
этаж
1
этаж
2
этаж
ПАРАМЕТРЫ ПРОЕКТА
221.40 м²
Общая площадь
221.40 м²
Цокольный этаж
72,30 м²
Прихожая
5 м² (-1 эт.)
Коридор
7,90 м² (-1 эт.)
Кладовая
4,60 м² (-1 эт.)
Техническое помещение
7,60 м² (-1 эт.)
Кладовая
6,30 м² (-1 эт.)
Лестница
1,80 м² (-1 эт.)
Гараж
39,10 м² (-1 эт.)
-1 этаж
1 этаж
2 этаж
все характеристики
жилой дом
Общая площадь
221.40 м²
Цокольный этаж
72,30 м²
Прихожая
5 м² (-1 эт.)
Коридор
7,90 м² (-1 эт.)
Кладовая
4,60 м² (-1 эт.)
Техническое помещение
7,60 м² (-1 эт.)
Кладовая
6,30 м² (-1 эт.)
Лестница
1,80 м² (-1 эт.)
Гараж
39,10 м² (-1 эт.)
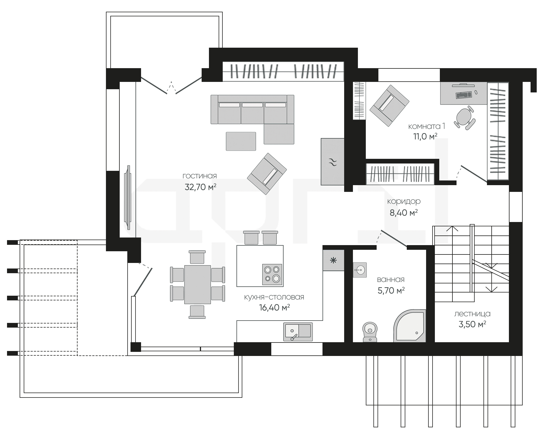
1 Этаж площадь
77,70 м²
Лестница
3,50 м²
Коридор
8,40 м²
Гостиная
32,70 м²
Кухня-столовая
16,40 м²
Ванная
5,70 м²
Комната 1
11 м²
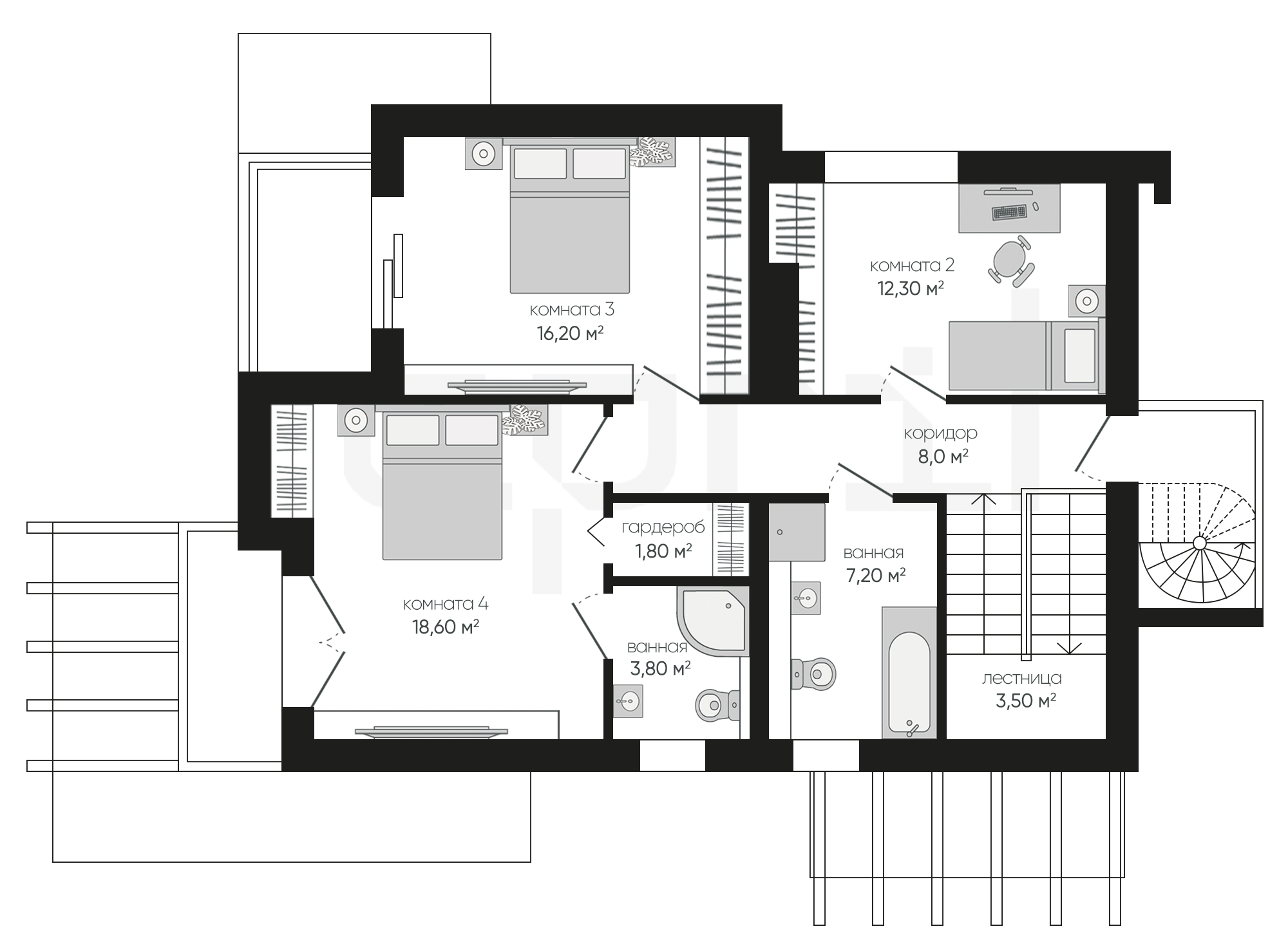
2 Этаж площадь
71,40 м²
Лестница
3,50 м² (2 эт.)
Коридор
8 м² (2 эт.)
Комната 2
12,30 м² (2 эт.)
Комната 3
16,20 м² (2 эт.)
Комната 4
18,60 м² (2 эт.)
Ванная
3,80 м² (2 эт.)
Гардероб
1,80 м² (2 эт.)
Ванная
7,20 м² (2 эт.)
планировка
все характеристики
все характеристики
жилой дом
Общая площадь
221.40 м²
Цокольный этаж
72,30 м²
Прихожая
5 м² (-1 эт.)
Коридор
7,90 м² (-1 эт.)
Кладовая
4,60 м² (-1 эт.)
Техническое помещение
7,60 м² (-1 эт.)
Кладовая
6,30 м² (-1 эт.)
Лестница
1,80 м² (-1 эт.)
Гараж
39,10 м² (-1 эт.)
1 Этаж площадь
77,70 м²
Лестница
3,50 м²
Коридор
8,40 м²
Гостиная
32,70 м²
Кухня-столовая
16,40 м²
Ванная
5,70 м²
Комната 1
11 м²
2 Этаж площадь
71,40 м²
Лестница
3,50 м² (2 эт.)
Коридор
8 м² (2 эт.)
Комната 2
12,30 м² (2 эт.)
Комната 3
16,20 м² (2 эт.)
Комната 4
18,60 м² (2 эт.)
Ванная
3,80 м² (2 эт.)
Гардероб
1,80 м² (2 эт.)
Ванная
7,20 м² (2 эт.)
экстерьер
Остались вопросы?
Напиши нам.
Наш ведущий инженер свяжется с вами в ближайшее время.
Обязательно к заполнению
Обязательно к заполнению
ДАННЫЕ ПОЛУЧЕНЫ

данные успешно отправлены

Ведущий инженер компании свяжется с вами в ближайшее время.
мы используем файлы cookie
Используя сайт april-dom.ru, Вы соглашаетесь с использованием файлов cookie, которые указаны в Политике обработки Персональных данных.
/projects/a379/