о проекте

В проекте предусмотрены навесы и террасы, интегрированные в общую структуру дома, что создает комфортные зоны для отдыха на свежем воздухе.

ЭТАЖНОСТЬ
1
ПЛОЩАДЬ
197.05 м²
1
этаж
ПАРАМЕТРЫ ПРОЕКТА
197.05 м²
Общая площадь
197.05 м²
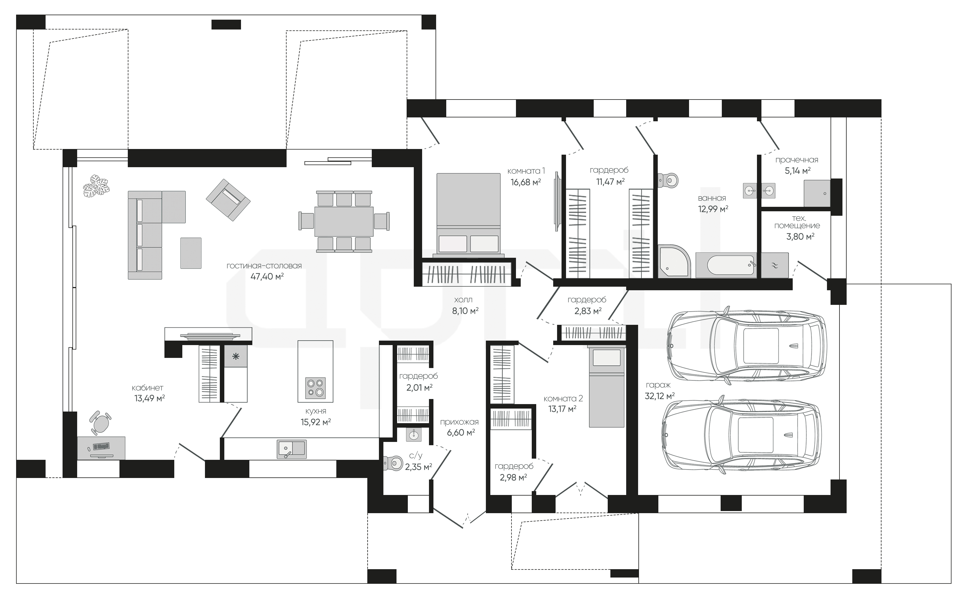
Прихожая
6,60 м²
С/у
2,35 м²
Гардероб
2,01 м²
Холл
8,10 м²
Гостиная-столовая
47,40 м²
Кухня
15,92 м²
Кабинет
13,49 м²
Комната 1
16,68 м²
1 этаж
все характеристики
жилой дом
Общая площадь
197.05 м²
Прихожая
6,60 м²
С/у
2,35 м²
Гардероб
2,01 м²
Холл
8,10 м²
Гостиная-столовая
47,40 м²
Кухня
15,92 м²
Кабинет
13,49 м²
Комната 1
16,68 м²
Гардероб
11,47 м²
Ванная
12,99 м²
Прачечная
5,14 м²
Комната 2
13,17 м²
Гардероб
2,98 м²
Гардероб
2,83 м²
Гараж
32,12 м²
Техническое помещение
3,80 м²
планировка
все характеристики
все характеристики
жилой дом
Общая площадь
197.05 м²
Прихожая
6,60 м²
С/у
2,35 м²
Гардероб
2,01 м²
Холл
8,10 м²
Гостиная-столовая
47,40 м²
Кухня
15,92 м²
Кабинет
13,49 м²
Комната 1
16,68 м²
Гардероб
11,47 м²
Ванная
12,99 м²
Прачечная
5,14 м²
Комната 2
13,17 м²
Гардероб
2,98 м²
Гардероб
2,83 м²
Гараж
32,12 м²
Техническое помещение
3,80 м²
экстерьер
Остались вопросы?
Напиши нам.
Наш ведущий инженер свяжется с вами в ближайшее время.
Обязательно к заполнению
Обязательно к заполнению
ДАННЫЕ ПОЛУЧЕНЫ

данные успешно отправлены

Ведущий инженер компании свяжется с вами в ближайшее время.
мы используем файлы cookie
Используя сайт april-dom.ru, Вы соглашаетесь с использованием файлов cookie, которые указаны в Политике обработки Персональных данных.
/projects/a409/