о проекте

Проект современный в стиле Хайтек, с чистыми линиями и геометрическими формами. Отсутствие скатной крыши и декоративных элементов подчеркивает минимализм.

ЭТАЖНОСТЬ
2
ПЛОЩАДЬ
136.89 м²
1
этаж
2
этаж
ПАРАМЕТРЫ ПРОЕКТА
136.89 м²
Общая площадь
136.89 м²
1 Этаж площадь
68,53 м²
Прихожая
3,10 м²
Коридор
4,66 м²
Гостиная-столовая
26,10 м²
Кухня
8,79 м²
С/у
2,08 м²
Комната 1
10,42 м²
Лестница
6,80 м²
1 этаж
2 этаж
все характеристики
жилой дом
Общая площадь
136.89 м²
1 Этаж площадь
68,53 м²
Прихожая
3,10 м²
Коридор
4,66 м²
Гостиная-столовая
26,10 м²
Кухня
8,79 м²
С/у
2,08 м²
Комната 1
10,42 м²
Лестница
6,80 м²
Техническое помещение
6,58 м²
2 Этаж площадь
68,36 м²
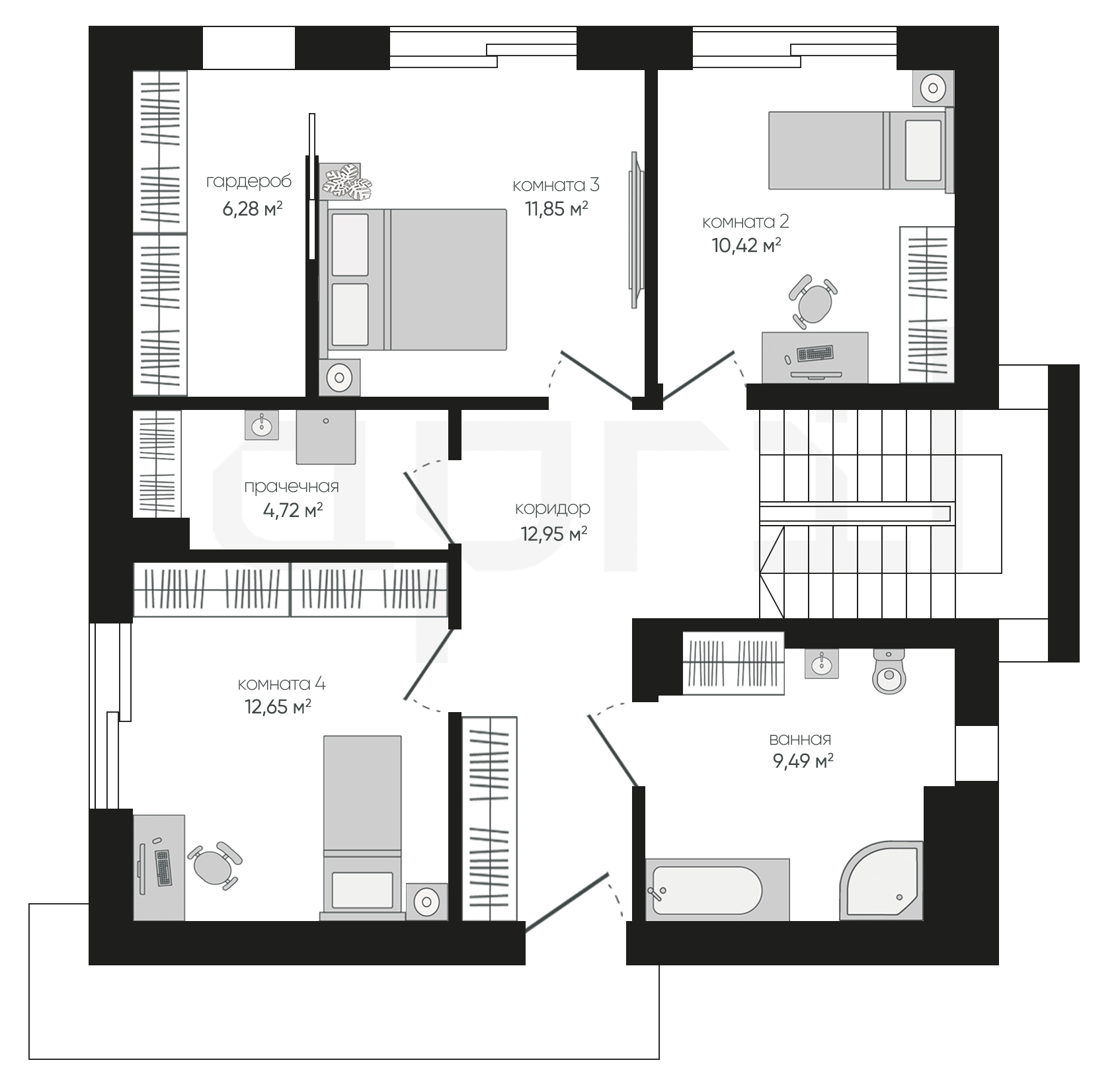
Коридор
12,95 м² (2 эт.)
Комната 2
10,42 м² (2 эт.)
Комната 3
11,85 м² (2 эт.)
Гардероб
6,28 м² (2 эт.)
Прачечная
4,72 м² (2 эт.)
Комната 4
12,65 м² (2 эт.)
Ванная
9,49 м² (2 эт.)
планировка
все характеристики
все характеристики
жилой дом
Общая площадь
136.89 м²
1 Этаж площадь
68,53 м²
Прихожая
3,10 м²
Коридор
4,66 м²
Гостиная-столовая
26,10 м²
Кухня
8,79 м²
С/у
2,08 м²
Комната 1
10,42 м²
Лестница
6,80 м²
Техническое помещение
6,58 м²
2 Этаж площадь
68,36 м²
Коридор
12,95 м² (2 эт.)
Комната 2
10,42 м² (2 эт.)
Комната 3
11,85 м² (2 эт.)
Гардероб
6,28 м² (2 эт.)
Прачечная
4,72 м² (2 эт.)
Комната 4
12,65 м² (2 эт.)
Ванная
9,49 м² (2 эт.)
экстерьер
Остались вопросы?
Напиши нам.
Наш ведущий инженер свяжется с вами в ближайшее время.
Обязательно к заполнению
Обязательно к заполнению
ДАННЫЕ ПОЛУЧЕНЫ

данные успешно отправлены

Ведущий инженер компании свяжется с вами в ближайшее время.
мы используем файлы cookie
Используя сайт april-dom.ru, Вы соглашаетесь с использованием файлов cookie, которые указаны в Политике обработки Персональных данных.
/projects/a417/