а529
Проект современного компактного дома с мансардой и террасой.
Благодаря тому, что фальцевая кровля и деревянный планкен подобраны почти в один тон, дом выглядит как единый, цельный объем. Это смягчает характерную для барнхаусов индустриальную строгость и делает здание более уютным.
Вместо контраста цветов здесь работает контраст фактур. Гладкий металл кровли меняет облик в зависимости от освещения, а вертикальные деревянные рейки создают ритмичную игру теней, что придает фасаду глубину.
Благодаря тому, что фальцевая кровля и деревянный планкен подобраны почти в один тон, дом выглядит как единый, цельный объем. Это смягчает характерную для барнхаусов индустриальную строгость и делает здание более уютным.
Вместо контраста цветов здесь работает контраст фактур. Гладкий металл кровли меняет облик в зависимости от освещения, а вертикальные деревянные рейки создают ритмичную игру теней, что придает фасаду глубину.
о проекте
Компактные габариты позволяют вписать этот дом даже в самый нестандартный или узкий ландшафт. Это отличное решение как для уютного семейного гнездышка, так и для стильного загородного отдыха в формате современной дачи
ЭТАЖНОСТЬ
2
ПЛОЩАДЬ
83.01 м²
ПАРАМЕТРЫ ПРОЕКТА
83.01 м²
Общая площадь
83.01 м²
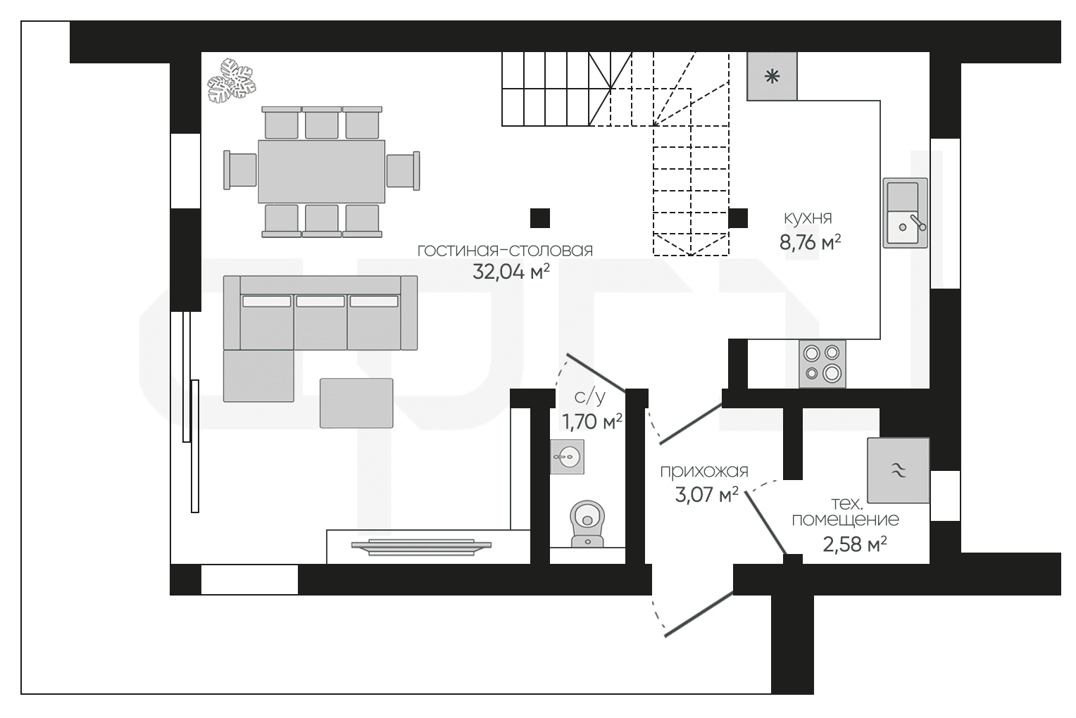
1 Этаж площадь
48,15 м²
Прихожая
3,07 м²
Гостиная-столовая
32,04 м²
Кухня
8,76 м²
С/у
1,70 м²
Техническое помещение
2,58 м²
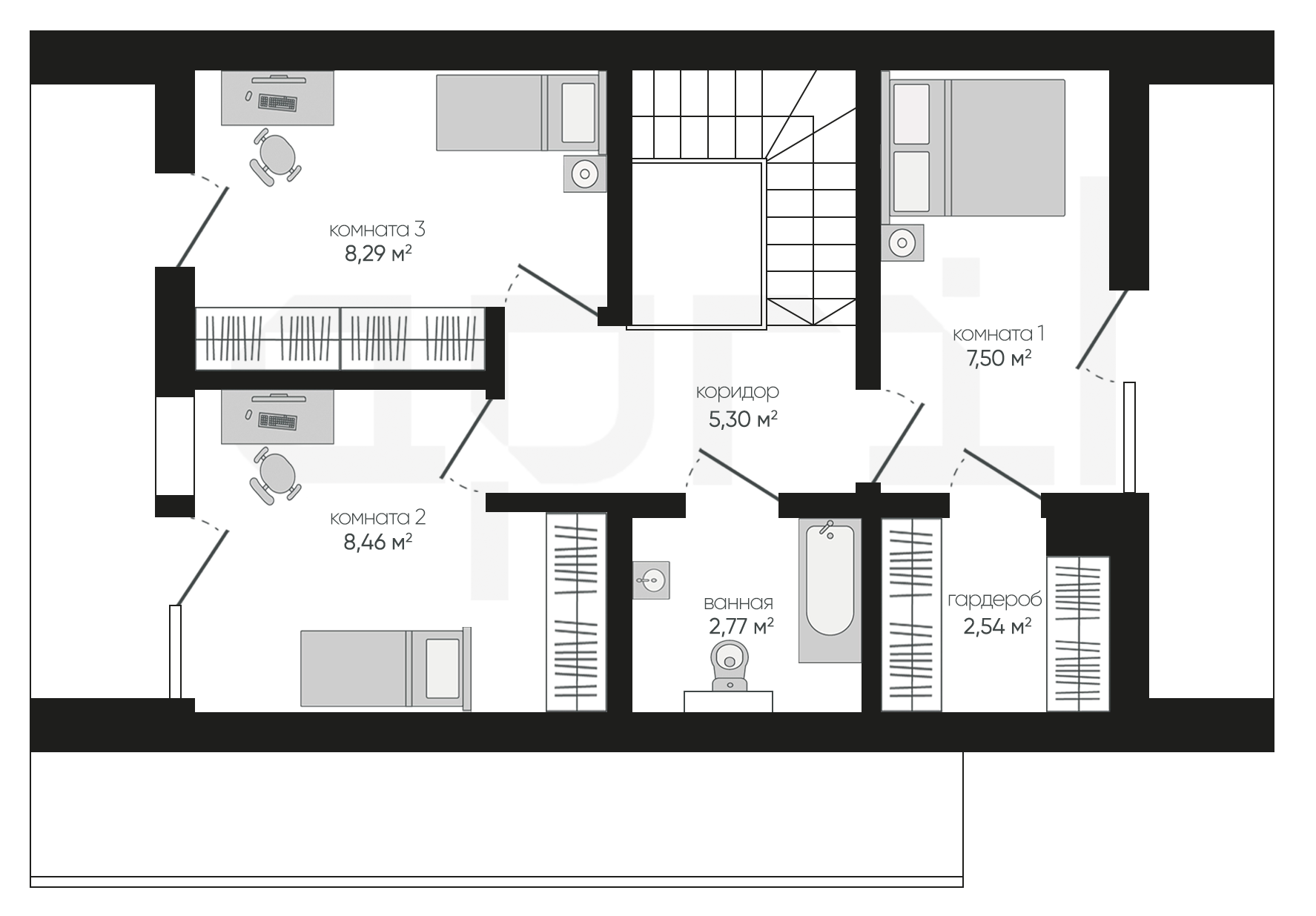
2 Этаж площадь
34,86 м²
Коридор
5,30 м² (2 эт.)
Остались вопросы?
Напиши нам.
Напиши нам.
Наш ведущий инженер свяжется с вами в ближайшее время.
ДАННЫЕ ПОЛУЧЕНЫ
данные успешно отправлены
Ведущий инженер компании свяжется с вами в ближайшее время.
Дома 1 этаж
Дома 2 этажа
Дома 1 этаж с гаражом
Дома 120 м2
Дома 150 м2
Дома 2 этажа с гаражом
Дома 200 м2
Дома 250 м2
Дома 3 этажа
Дома в скандинавском стиле
Дома в стиле райта
Дома в стиле хайтек
Дома до 100 м2
Дома с гаражом
Дома с мансардой
Дома с сауной
Дома 1 этаж с гаражом и террасой
Дома 1 этаж с террасой
Дома в стиле барнхаус
Дома в стиле шале
Дома из газобетона
Дома из газобетона 1 этаж
Дома из камня
Дома из керамических блоков
Дома из кирпича
Дома из пеноблоков
Дома с зимним садом
Дома с подвалом
Дома с террасой
Дома с цокольным этажом
Фахверковые дома
Дома с бассейном