о проекте

Проект одноэтажного небольшого дома может стать решением для тех, кто ценит простоту и функциональность.

ЭТАЖНОСТЬ
1
ПЛОЩАДЬ
98.50 м²
1
этаж
ПАРАМЕТРЫ ПРОЕКТА
98.50 м²
Общая площадь
98.50 м²
Прихожая
4,20 м²
Коридор
7,90 м²
Гостиная-столовая
25,50 м²
Кухня
9,10 м²
Кладовая
2,60 м²
С/у
3,10 м²
Комната 1
10,20 м²
Гардероб
3,10 м²
1 этаж
все характеристики
жилой дом
Общая площадь
98.50 м²
Прихожая
4,20 м²
Коридор
7,90 м²
Гостиная-столовая
25,50 м²
Кухня
9,10 м²
Кладовая
2,60 м²
С/у
3,10 м²
Комната 1
10,20 м²
Гардероб
3,10 м²
Комната 2
12,10 м²
Комната 3
9,40 м²
Ванная
7,10 м²
Техническое помещение
4,20 м²
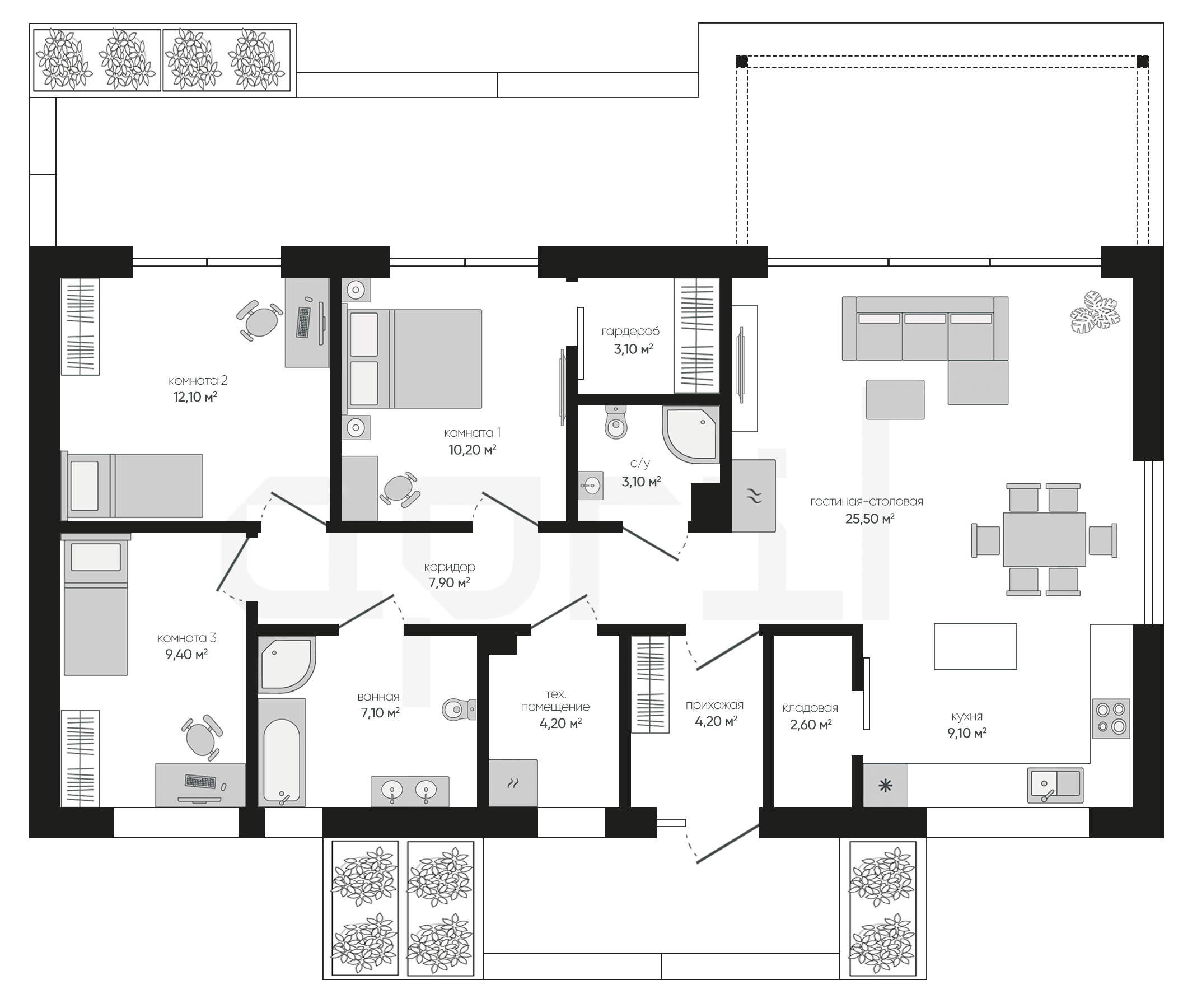
планировка
все характеристики
все характеристики
жилой дом
Общая площадь
98.50 м²
Прихожая
4,20 м²
Коридор
7,90 м²
Гостиная-столовая
25,50 м²
Кухня
9,10 м²
Кладовая
2,60 м²
С/у
3,10 м²
Комната 1
10,20 м²
Гардероб
3,10 м²
Комната 2
12,10 м²
Комната 3
9,40 м²
Ванная
7,10 м²
Техническое помещение
4,20 м²
экстерьер
Остались вопросы?
Напиши нам.
Наш ведущий инженер свяжется с вами в ближайшее время.
Обязательно к заполнению
Обязательно к заполнению
ДАННЫЕ ПОЛУЧЕНЫ

данные успешно отправлены

Ведущий инженер компании свяжется с вами в ближайшее время.
мы используем файлы cookie
Используя сайт april-dom.ru, Вы соглашаетесь с использованием файлов cookie, которые указаны в Политике обработки Персональных данных.
/projects/a176/