о проекте

Форма дома спроектирована в традиционном современном стиле, благодаря чему он прекрасно впишется в любой ландшафт.

ЭТАЖНОСТЬ
2
ПЛОЩАДЬ
275.42 м²
1
этаж
2
этаж
ПАРАМЕТРЫ ПРОЕКТА
275.42 м²
Общая площадь
275.42 м²
1 Этаж площадь
160,16 м²
Прихожая
6,16 м²
Холл
12,04 м²
Гостиная-столовая
41,35 м²
Кухня
15,90 м²
Кладовая
4,76 м²
С/у
4,07 м²
Комната 1
13,62 м²
1 этаж
2 этаж
все характеристики
жилой дом
Общая площадь
275.42 м²
1 Этаж площадь
160,16 м²
Прихожая
6,16 м²
Холл
12,04 м²
Гостиная-столовая
41,35 м²
Кухня
15,90 м²
Кладовая
4,76 м²
С/у
4,07 м²
Комната 1
13,62 м²
Коридор
6,33 м²
Техническое помещение
11,28 м²
Техническое помещение
10,90 м²
Гараж
33,75 м²
Терраса
16,30 м²
Терраса
56,87 м²
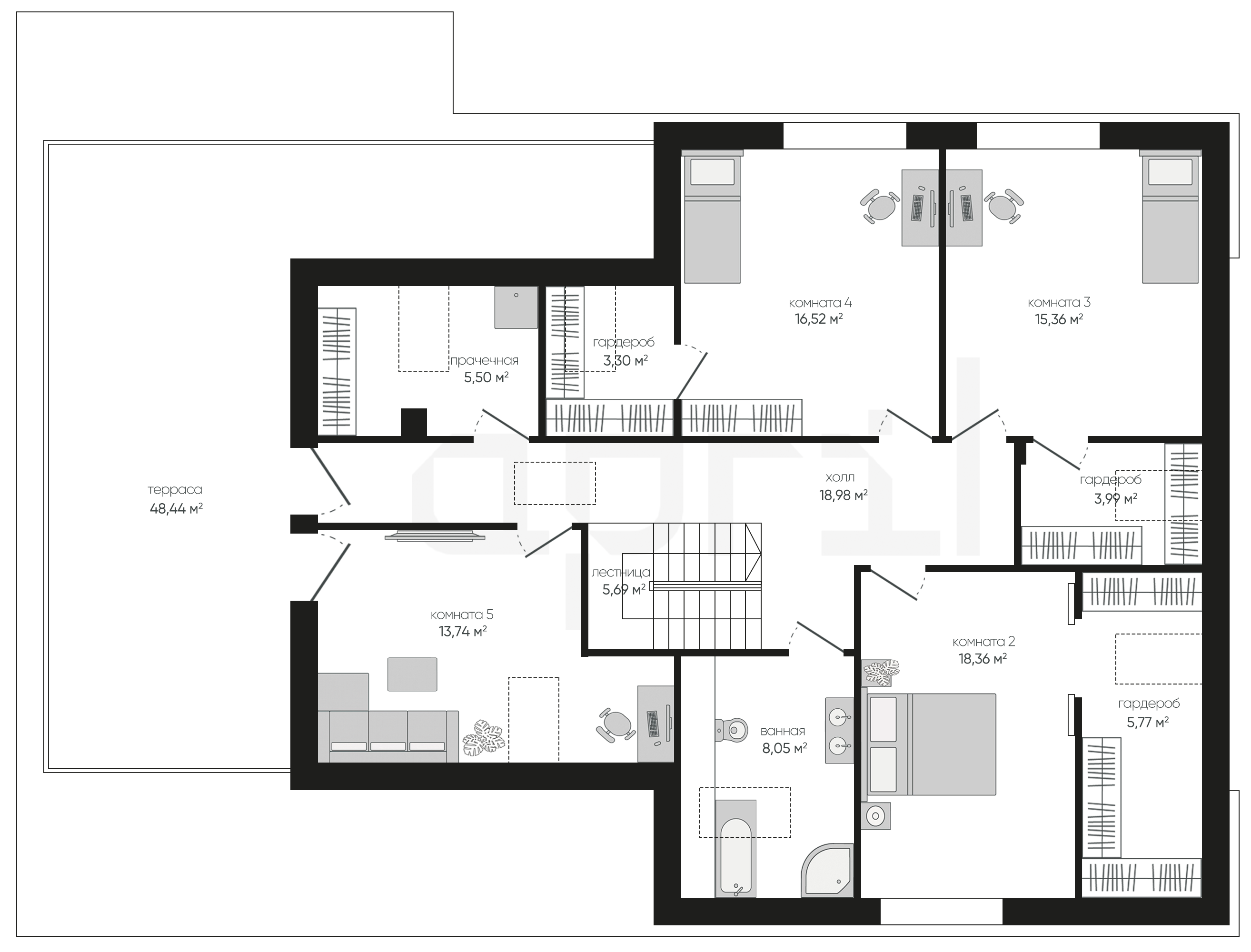
2 Этаж площадь
115,26 м²
Лестница
5,69 м² (2 эт.)
Холл
18,98 м² (2 эт.)
Ванная
8,05 м² (2 эт.)
Комната 2
18,36 м² (2 эт.)
Гардероб
5,77 м² (2 эт.)
Комната 3
15,36 м² (2 эт.)
Гардероб
3,99 м² (2 эт.)
Комната 4
16,52 м² (2 эт.)
Гардероб
3,30 м² (2 эт.)
Прачечная
5,50 м² (2 эт.)
Комната 5
13,74 м² (2 эт.)
Терраса
48,44 м² (2 эт.)
планировка
все характеристики
все характеристики
жилой дом
Общая площадь
275.42 м²
1 Этаж площадь
160,16 м²
Прихожая
6,16 м²
Холл
12,04 м²
Гостиная-столовая
41,35 м²
Кухня
15,90 м²
Кладовая
4,76 м²
С/у
4,07 м²
Комната 1
13,62 м²
Коридор
6,33 м²
Техническое помещение
11,28 м²
Техническое помещение
10,90 м²
Гараж
33,75 м²
Терраса
16,30 м²
Терраса
56,87 м²
2 Этаж площадь
115,26 м²
Лестница
5,69 м² (2 эт.)
Холл
18,98 м² (2 эт.)
Ванная
8,05 м² (2 эт.)
Комната 2
18,36 м² (2 эт.)
Гардероб
5,77 м² (2 эт.)
Комната 3
15,36 м² (2 эт.)
Гардероб
3,99 м² (2 эт.)
Комната 4
16,52 м² (2 эт.)
Гардероб
3,30 м² (2 эт.)
Прачечная
5,50 м² (2 эт.)
Комната 5
13,74 м² (2 эт.)
Терраса
48,44 м² (2 эт.)
экстерьер
Остались вопросы?
Напиши нам.
Наш ведущий инженер свяжется с вами в ближайшее время.
Обязательно к заполнению
Обязательно к заполнению
ДАННЫЕ ПОЛУЧЕНЫ

данные успешно отправлены

Ведущий инженер компании свяжется с вами в ближайшее время.
мы используем файлы cookie
Используя сайт april-dom.ru, Вы соглашаетесь с использованием файлов cookie, которые указаны в Политике обработки Персональных данных.
/projects/a339/