о проекте

Проект отличается современным и функциональным дизайном. Плоская крыша дома не только придаёт ему современный вид, но и позволяет оптимально использовать внутреннее пространство. Преимущество естественного освещения и открытых пространств способствует созданию светлой и уютной атмосферы в доме.

ЭТАЖНОСТЬ
2
ПЛОЩАДЬ
251.05 м²
-1
этаж
1
этаж
2
этаж
ПАРАМЕТРЫ ПРОЕКТА
251.05 м²
Общая площадь
251.05 м²
Цокольный этаж
83,92 м²
Коридор
7,59 м² (-1 эт.)
Кладовая
21,12 м² (-1 эт.)
Подвал
42,83 м² (-1 эт.)
Подвал
11,38 м² (-1 эт.)
1 Этаж площадь
84,03 м²
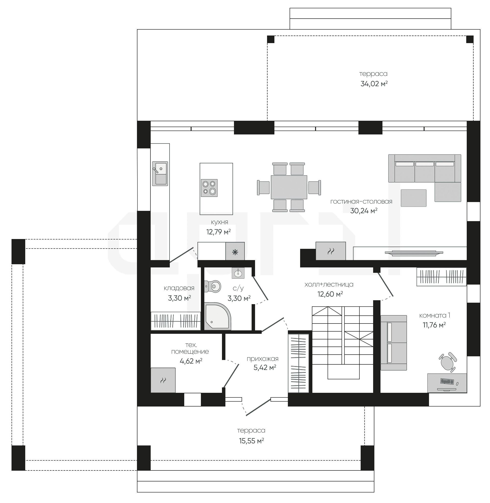
Прихожая
5,42 м²
Холл+лестница
12,60 м²
-1 этаж
1 этаж
2 этаж
все характеристики
жилой дом
Общая площадь
251.05 м²
Цокольный этаж
83,92 м²
Коридор
7,59 м² (-1 эт.)
Кладовая
21,12 м² (-1 эт.)
Подвал
42,83 м² (-1 эт.)
Подвал
11,38 м² (-1 эт.)
1 Этаж площадь
84,03 м²
Прихожая
5,42 м²
Холл+лестница
12,60 м²
Гостиная-столовая
30,24 м²
Кухня
12,79 м²
Кладовая
3,30 м²
С/у
3,30 м²
Комната 1
11,76 м²
Техническое помещение
4,62 м²
Терраса
15,55 м²
Терраса
34,02 м²
2 Этаж площадь
83,10 м²
Лестница
5,47 м² (2 эт.)
Коридор
6,89 м² (2 эт.)
Комната 2
11,20 м² (2 эт.)
Комната 3
13,99 м² (2 эт.)
Комната 4
13,97 м² (2 эт.)
Комната 5
14,03 м² (2 эт.)
Гардероб
5,67 м² (2 эт.)
Ванная
5,44 м² (2 эт.)
Ванная
6,44 м² (2 эт.)
Терраса
23,16 м² (2 эт.)
Терраса
17,37 м² (2 эт.)
планировка
все характеристики
все характеристики
жилой дом
Общая площадь
251.05 м²
Цокольный этаж
83,92 м²
Коридор
7,59 м² (-1 эт.)
Кладовая
21,12 м² (-1 эт.)
Подвал
42,83 м² (-1 эт.)
Подвал
11,38 м² (-1 эт.)
1 Этаж площадь
84,03 м²
Прихожая
5,42 м²
Холл+лестница
12,60 м²
Гостиная-столовая
30,24 м²
Кухня
12,79 м²
Кладовая
3,30 м²
С/у
3,30 м²
Комната 1
11,76 м²
Техническое помещение
4,62 м²
Терраса
15,55 м²
Терраса
34,02 м²
2 Этаж площадь
83,10 м²
Лестница
5,47 м² (2 эт.)
Коридор
6,89 м² (2 эт.)
Комната 2
11,20 м² (2 эт.)
Комната 3
13,99 м² (2 эт.)
Комната 4
13,97 м² (2 эт.)
Комната 5
14,03 м² (2 эт.)
Гардероб
5,67 м² (2 эт.)
Ванная
5,44 м² (2 эт.)
Ванная
6,44 м² (2 эт.)
Терраса
23,16 м² (2 эт.)
Терраса
17,37 м² (2 эт.)
экстерьер
гостиная-столовая
Остались вопросы?
Напиши нам.
Наш ведущий инженер свяжется с вами в ближайшее время.
Обязательно к заполнению
Обязательно к заполнению
ДАННЫЕ ПОЛУЧЕНЫ

данные успешно отправлены

Ведущий инженер компании свяжется с вами в ближайшее время.
мы используем файлы cookie
Используя сайт april-dom.ru, Вы соглашаетесь с использованием файлов cookie, которые указаны в Политике обработки Персональных данных.
/projects/a381/