о проекте

Проект спроектирован с вниманием к деталям и отличается чистыми и геометрическими линиями, предлагая современный и элегантный внешний вид. Отличительными элементами фасада являются большие окна и высокотехнологичные светильники, которые обеспечивают обильное естественное освещение и улучшают эстетичный вид дома.

ЭТАЖНОСТЬ
2
ПЛОЩАДЬ
294.52 м²
-1
этаж
1
этаж
2
этаж
ПАРАМЕТРЫ ПРОЕКТА
294.52 м²
Общая площадь
294.52 м²
Цокольный этаж
112,72 м²
Коридор
10,66 м² (-1 эт.)
Техническое помещение
14,70 м² (-1 эт.)
Техническое помещение
35,28 м² (-1 эт.)
Техническое помещение
7,50 м² (-1 эт.)
Техническое помещение
23,75 м² (-1 эт.)
Техническое помещение
20,83 м² (-1 эт.)
1 Этаж площадь
113,24 м²
-1 этаж
1 этаж
2 этаж
все характеристики
жилой дом
Общая площадь
294.52 м²
Цокольный этаж
112,72 м²
Коридор
10,66 м² (-1 эт.)
Техническое помещение
14,70 м² (-1 эт.)
Техническое помещение
35,28 м² (-1 эт.)
Техническое помещение
7,50 м² (-1 эт.)
Техническое помещение
23,75 м² (-1 эт.)
Техническое помещение
20,83 м² (-1 эт.)
1 Этаж площадь
113,24 м²
Прихожая
5,39 м²
Холл
6,06 м²
Гостиная
30,82 м²
Кухня-столовая
13,13 м²
С/у
3,72 м²
Коридор
2,41 м²
Комната 1
9,02 м²
Техническое помещение
7,41 м²
Гараж
35,28 м²
2 Этаж площадь
68,56 м²
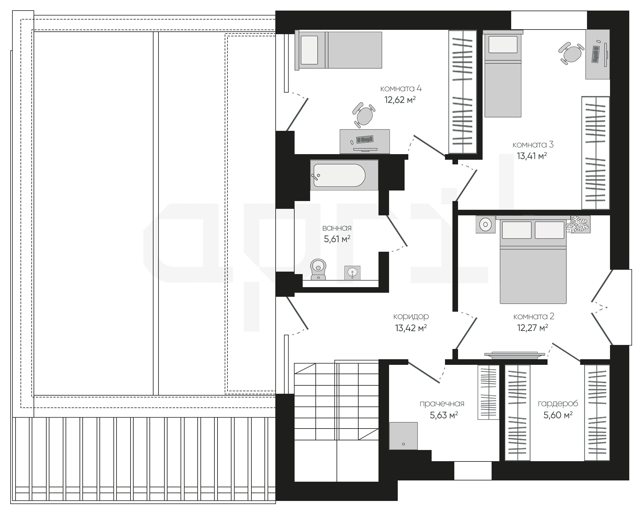
Коридор
13,42 м² (2 эт.)
Прачечная
5,63 м² (2 эт.)
Комната 2
12,27 м² (2 эт.)
Гардероб
5,60 м² (2 эт.)
Комната 3
13,41 м² (2 эт.)
Комната 4
12,62 м² (2 эт.)
Ванная
5,61 м² (2 эт.)
планировка
все характеристики
все характеристики
жилой дом
Общая площадь
294.52 м²
Цокольный этаж
112,72 м²
Коридор
10,66 м² (-1 эт.)
Техническое помещение
14,70 м² (-1 эт.)
Техническое помещение
35,28 м² (-1 эт.)
Техническое помещение
7,50 м² (-1 эт.)
Техническое помещение
23,75 м² (-1 эт.)
Техническое помещение
20,83 м² (-1 эт.)
1 Этаж площадь
113,24 м²
Прихожая
5,39 м²
Холл
6,06 м²
Гостиная
30,82 м²
Кухня-столовая
13,13 м²
С/у
3,72 м²
Коридор
2,41 м²
Комната 1
9,02 м²
Техническое помещение
7,41 м²
Гараж
35,28 м²
2 Этаж площадь
68,56 м²
Коридор
13,42 м² (2 эт.)
Прачечная
5,63 м² (2 эт.)
Комната 2
12,27 м² (2 эт.)
Гардероб
5,60 м² (2 эт.)
Комната 3
13,41 м² (2 эт.)
Комната 4
12,62 м² (2 эт.)
Ванная
5,61 м² (2 эт.)
экстерьер
Остались вопросы?
Напиши нам.
Наш ведущий инженер свяжется с вами в ближайшее время.
Обязательно к заполнению
Обязательно к заполнению
ДАННЫЕ ПОЛУЧЕНЫ

данные успешно отправлены

Ведущий инженер компании свяжется с вами в ближайшее время.
мы используем файлы cookie
Используя сайт april-dom.ru, Вы соглашаетесь с использованием файлов cookie, которые указаны в Политике обработки Персональных данных.
/projects/a382/