о проекте

Проект отличается современным минималистичным дизайном, большим остеклением и, прежде всего, плоской крышей, что является особенностью стиля Хайтек.

ЭТАЖНОСТЬ
2
ПЛОЩАДЬ
314.84 м²
-1
этаж
1
этаж
2
этаж
ПАРАМЕТРЫ ПРОЕКТА
314.84 м²
Общая площадь
314.84 м²
Цокольный этаж
45,35 м²
Лестница
4,02 м² (-1 эт.)
Коридор
9,91 м² (-1 эт.)
Гардероб
2,59 м² (-1 эт.)
С/у
3,39 м² (-1 эт.)
Комната отдыха
19,42 м² (-1 эт.)
Сауна
3,57 м² (-1 эт.)
Кладовая
2,45 м² (-1 эт.)
-1 этаж
1 этаж
2 этаж
все характеристики
жилой дом
Общая площадь
314.84 м²
Цокольный этаж
45,35 м²
Лестница
4,02 м² (-1 эт.)
Коридор
9,91 м² (-1 эт.)
Гардероб
2,59 м² (-1 эт.)
С/у
3,39 м² (-1 эт.)
Комната отдыха
19,42 м² (-1 эт.)
Сауна
3,57 м² (-1 эт.)
Кладовая
2,45 м² (-1 эт.)
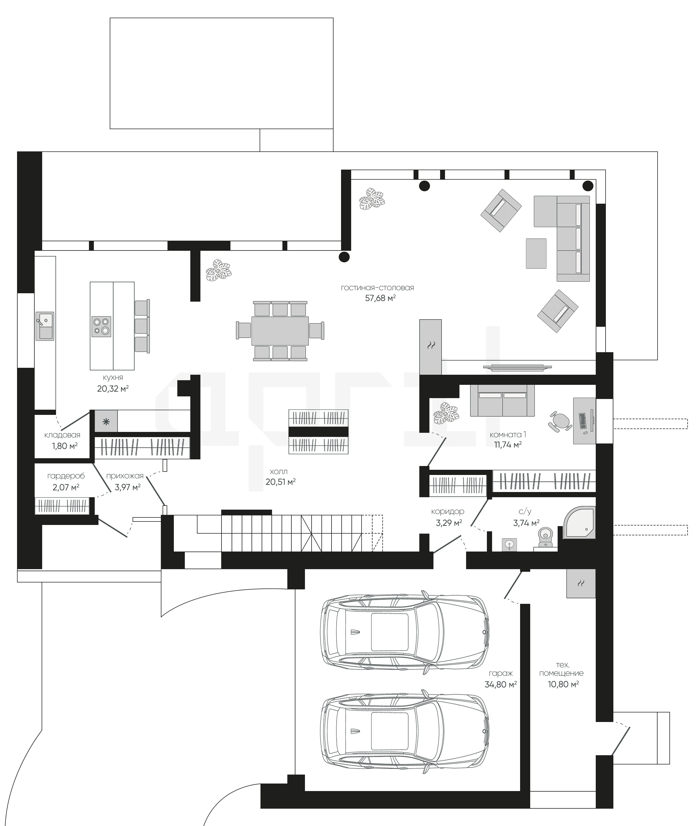
1 Этаж площадь
170,72 м²
Прихожая
3,97 м²
Гардероб
2,07 м²
Холл
20,51 м²
Гостиная-столовая
57,68 м²
Кухня
20,32 м²
Кладовая
1,80 м²
Комната 1
11,74 м²
Коридор
3,29 м²
С/у
3,74 м²
Гараж
34,80 м²
Техническое помещение
10,80 м²
2 Этаж площадь
98,77 м²
Холл
14,57 м² (2 эт.)
Комната 2
19,69 м² (2 эт.)
Комната 3
16,07 м² (2 эт.)
Гардероб
5,38 м² (2 эт.)
Ванная
9,08 м² (2 эт.)
Ванная
5,30 м² (2 эт.)
Комната 4
19,11 м² (2 эт.)
Комната 5
9,57 м² (2 эт.)
планировка
все характеристики
все характеристики
жилой дом
Общая площадь
314.84 м²
Цокольный этаж
45,35 м²
Лестница
4,02 м² (-1 эт.)
Коридор
9,91 м² (-1 эт.)
Гардероб
2,59 м² (-1 эт.)
С/у
3,39 м² (-1 эт.)
Комната отдыха
19,42 м² (-1 эт.)
Сауна
3,57 м² (-1 эт.)
Кладовая
2,45 м² (-1 эт.)
1 Этаж площадь
170,72 м²
Прихожая
3,97 м²
Гардероб
2,07 м²
Холл
20,51 м²
Гостиная-столовая
57,68 м²
Кухня
20,32 м²
Кладовая
1,80 м²
Комната 1
11,74 м²
Коридор
3,29 м²
С/у
3,74 м²
Гараж
34,80 м²
Техническое помещение
10,80 м²
2 Этаж площадь
98,77 м²
Холл
14,57 м² (2 эт.)
Комната 2
19,69 м² (2 эт.)
Комната 3
16,07 м² (2 эт.)
Гардероб
5,38 м² (2 эт.)
Ванная
9,08 м² (2 эт.)
Ванная
5,30 м² (2 эт.)
Комната 4
19,11 м² (2 эт.)
Комната 5
9,57 м² (2 эт.)
экстерьер
гостиная-столовая
Остались вопросы?
Напиши нам.
Наш ведущий инженер свяжется с вами в ближайшее время.
Обязательно к заполнению
Обязательно к заполнению
ДАННЫЕ ПОЛУЧЕНЫ

данные успешно отправлены

Ведущий инженер компании свяжется с вами в ближайшее время.
мы используем файлы cookie
Используя сайт april-dom.ru, Вы соглашаетесь с использованием файлов cookie, которые указаны в Политике обработки Персональных данных.
/projects/a387/