о проекте

Проект дома с привлекательной архитектурой, продуманным внутренним и внешним дизайном был разработан с вниманием к деталям и оптимизирован для максимального использования полезного пространства и функциональности.

ЭТАЖНОСТЬ
2
ПЛОЩАДЬ
264.06 м²
1
этаж
2
этаж
ПАРАМЕТРЫ ПРОЕКТА
264.06 м²
Общая площадь
264.06 м²
1 Этаж площадь
161,52 м²
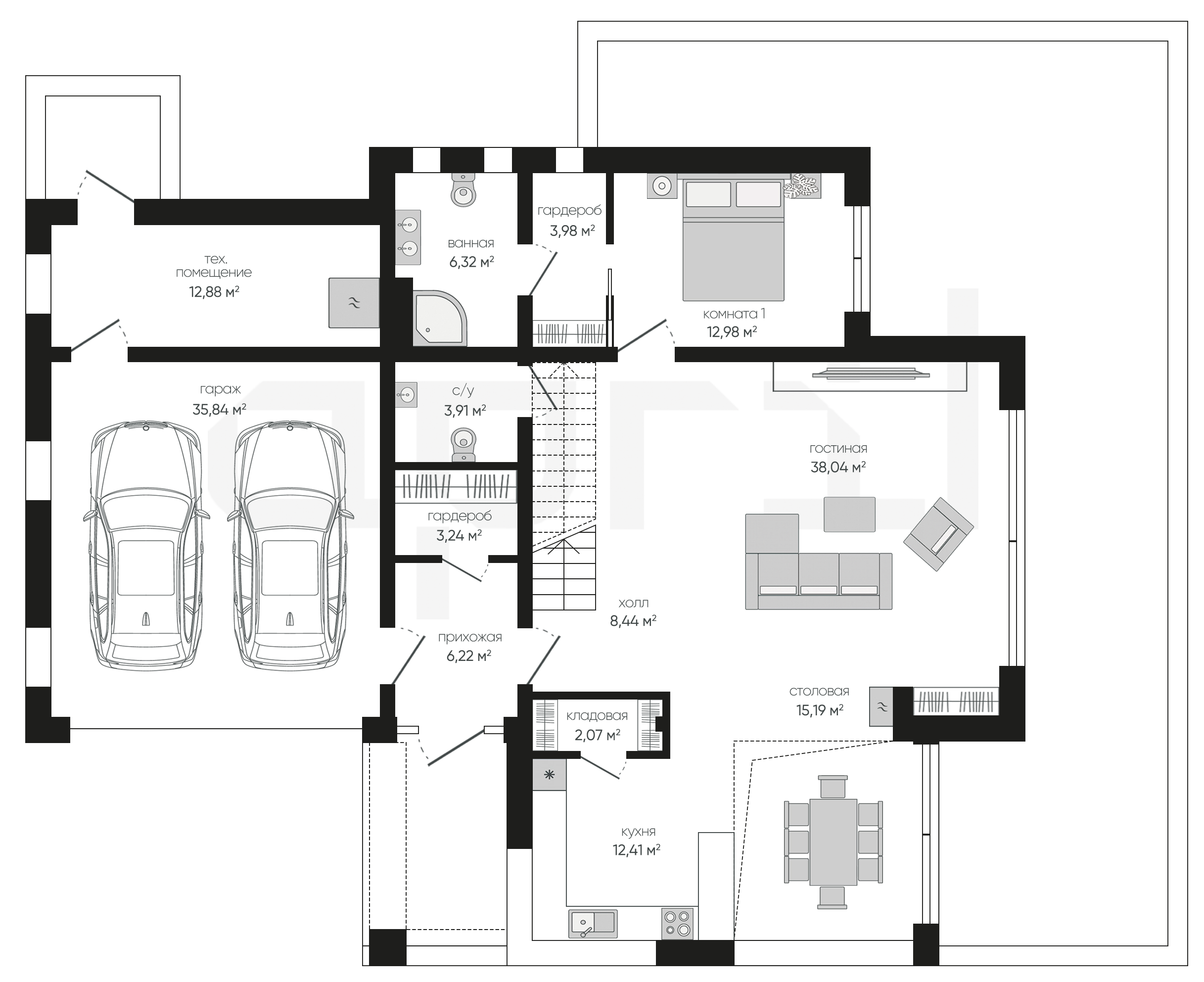
Прихожая
6,22 м²
Гардероб
3,24 м²
Холл
8,44 м²
Гостиная
38,04 м²
Столовая
15,19 м²
Кухня
12,41 м²
Кладовая
2,07 м²
1 этаж
2 этаж
все характеристики
жилой дом
Общая площадь
264.06 м²
1 Этаж площадь
161,52 м²
Прихожая
6,22 м²
Гардероб
3,24 м²
Холл
8,44 м²
Гостиная
38,04 м²
Столовая
15,19 м²
Кухня
12,41 м²
Кладовая
2,07 м²
Комната 1
12,98 м²
Гардероб
3,98 м²
Ванная
6,32 м²
С/у
3,91 м²
Техническое помещение
12,88 м²
Гараж
35,84 м²
2 Этаж площадь
102,54 м²
Коридор
10,73 м² (2 эт.)
Комната 2
16,49 м² (2 эт.)
Комната 3
16,51 м² (2 эт.)
Антресоль
17,02 м² (2 эт.)
Комната 4
15,16 м² (2 эт.)
Гардероб
6,76 м² (2 эт.)
Ванная
10,63 м² (2 эт.)
Ванная
6,51 м² (2 эт.)
Прачечная
2,73 м² (2 эт.)
планировка
все характеристики
все характеристики
жилой дом
Общая площадь
264.06 м²
1 Этаж площадь
161,52 м²
Прихожая
6,22 м²
Гардероб
3,24 м²
Холл
8,44 м²
Гостиная
38,04 м²
Столовая
15,19 м²
Кухня
12,41 м²
Кладовая
2,07 м²
Комната 1
12,98 м²
Гардероб
3,98 м²
Ванная
6,32 м²
С/у
3,91 м²
Техническое помещение
12,88 м²
Гараж
35,84 м²
2 Этаж площадь
102,54 м²
Коридор
10,73 м² (2 эт.)
Комната 2
16,49 м² (2 эт.)
Комната 3
16,51 м² (2 эт.)
Антресоль
17,02 м² (2 эт.)
Комната 4
15,16 м² (2 эт.)
Гардероб
6,76 м² (2 эт.)
Ванная
10,63 м² (2 эт.)
Ванная
6,51 м² (2 эт.)
Прачечная
2,73 м² (2 эт.)
экстерьер
Остались вопросы?
Напиши нам.
Наш ведущий инженер свяжется с вами в ближайшее время.
Обязательно к заполнению
Обязательно к заполнению
ДАННЫЕ ПОЛУЧЕНЫ

данные успешно отправлены

Ведущий инженер компании свяжется с вами в ближайшее время.
мы используем файлы cookie
Используя сайт april-dom.ru, Вы соглашаетесь с использованием файлов cookie, которые указаны в Политике обработки Персональных данных.
/projects/a420/