а457
Проект двухэтажного дома с плоской крышей, террасой и навесом.
Фасад сочетает белую штукатурку с горизонтальными деревянными панелями, что создает контраст и придает теплоту внешнему виду.
На втором этаже имеется открытая терраса с стеклянным ограждением. Справа от входа расположен интегрированный навес для двух автомобилей.
Фасад сочетает белую штукатурку с горизонтальными деревянными панелями, что создает контраст и придает теплоту внешнему виду.
На втором этаже имеется открытая терраса с стеклянным ограждением. Справа от входа расположен интегрированный навес для двух автомобилей.
о проекте
Проект позиционируется как элегантный и современный, подходящий для семьи из 4-5 человек с возможностью выбора между гаражным навесом или полноценным гаражом.
ЭТАЖНОСТЬ
2
ПЛОЩАДЬ
221.61 м²
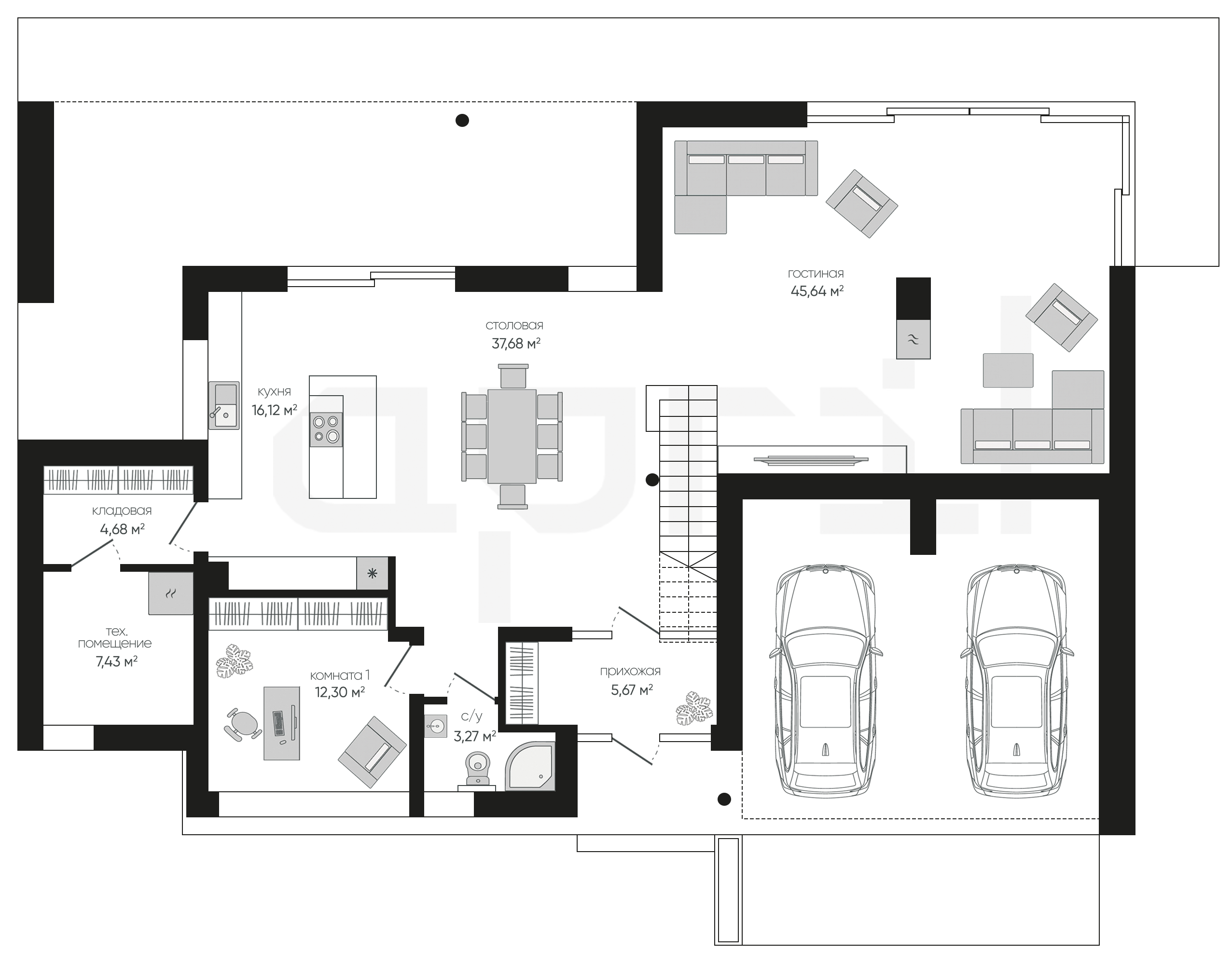
ПАРАМЕТРЫ ПРОЕКТА
221.61 м²
Общая площадь
221.61 м²
1 Этаж площадь
132,79 м²
Прихожая
5,67 м²
Гостиная
45,64 м²
Столовая
37,68 м²
Кухня
16,12 м²
Кладовая
4,68 м²
Техническое помещение
7,43 м²
Комната 1
12,30 м²
Остались вопросы?
Напиши нам.
Напиши нам.
Наш ведущий инженер свяжется с вами в ближайшее время.
ДАННЫЕ ПОЛУЧЕНЫ
данные успешно отправлены
Ведущий инженер компании свяжется с вами в ближайшее время.
Дома 1 этаж
Дома 2 этажа
Дома 1 этаж с гаражом
Дома 120 м2
Дома 150 м2
Дома 2 этажа с гаражом
Дома 200 м2
Дома 250 м2
Дома 3 этажа
Дома в скандинавском стиле
Дома в стиле райта
Дома в стиле хайтек
Дома до 100 м2
Дома с гаражом
Дома с мансардой
Дома с сауной
Дома 1 этаж с гаражом и террасой
Дома 1 этаж с террасой
Дома в стиле барнхаус
Дома в стиле шале
Дома из газобетона
Дома из газобетона 1 этаж
Дома из камня
Дома из керамических блоков
Дома из кирпича
Дома из пеноблоков
Дома с зимним садом
Дома с подвалом
Дома с террасой
Дома с цокольным этажом
Фахверковые дома
Дома с бассейном