а477
Проект двухэтажного современного дома в стиле Хайтек с плоской крышей, гаражом и террасой.
Сочетание антрацитовых стен и вертикального дерева создает выразительный образ, в котором строгость современных форм смягчается природной теплотой материалов.
Темные рамы остекления, подобранные в тон антрацитовой штукатурке, визуально объединяют окна с массивом стен. Это создает эффект бесшовной, монолитной поверхности, где стекло не «разрезает» фасад, а дополняет его.
Сочетание антрацитовых стен и вертикального дерева создает выразительный образ, в котором строгость современных форм смягчается природной теплотой материалов.
Темные рамы остекления, подобранные в тон антрацитовой штукатурке, визуально объединяют окна с массивом стен. Это создает эффект бесшовной, монолитной поверхности, где стекло не «разрезает» фасад, а дополняет его.
о проекте
Внешний облик проектируемого здания базируется на принципах современного минимализма, где эстетическая выразительность достигается за счет чистоты линий и выверенного сочетания фактур. Цветовое решение фасадов выдержано в сдержанной, глубокой гамме, что позволяет проекту гармонично вписаться в любой ландшафт.
ЭТАЖНОСТЬ
2
ПЛОЩАДЬ
261.30 м²
ПАРАМЕТРЫ ПРОЕКТА
261.30 м²
Общая площадь
261.30 м²
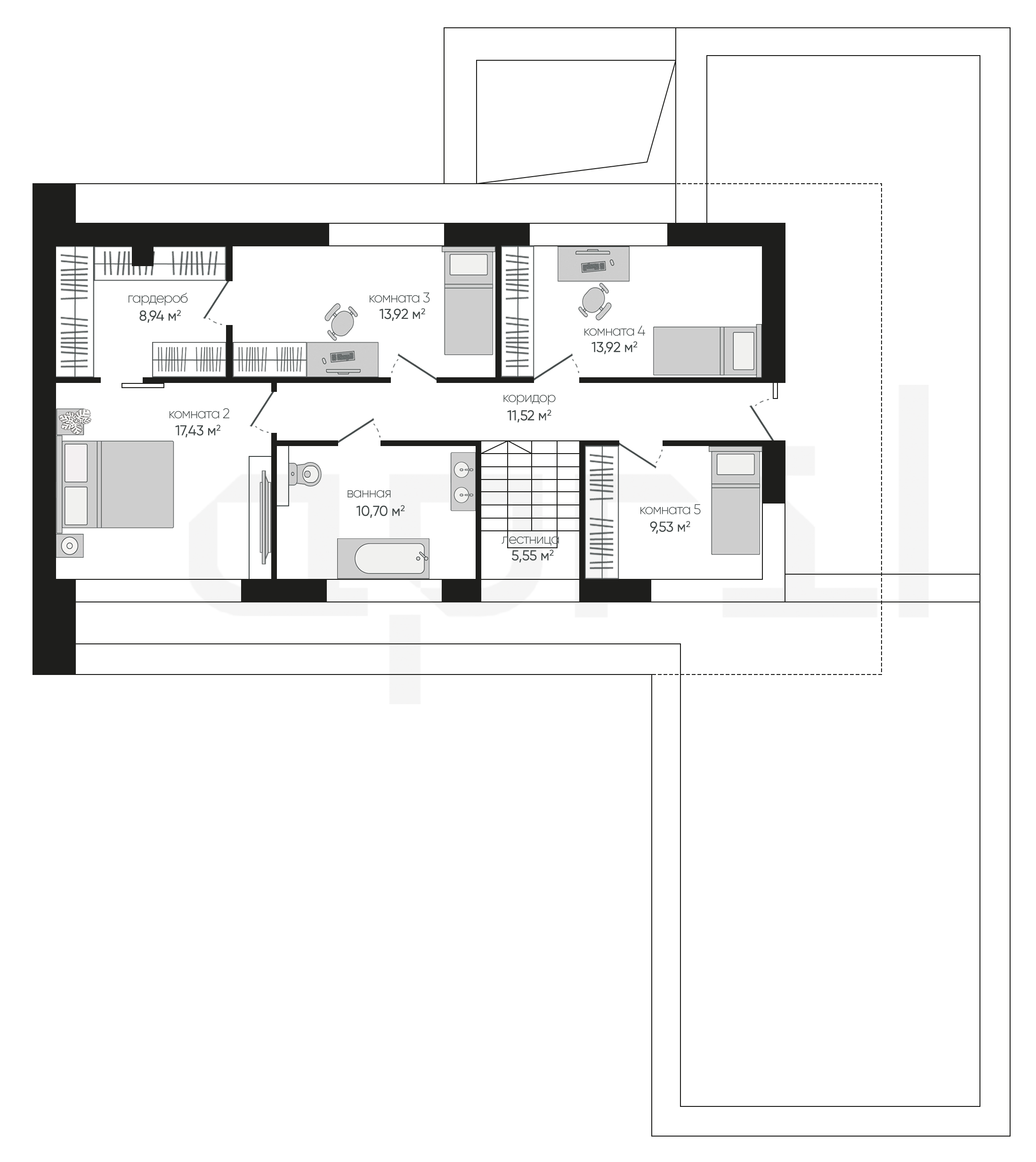
1 Этаж площадь
169,79 м²
Прихожая
13,32 м²
Коридор
8,87 м²
Гостиная
36,66 м²
Столовая
16,66 м²
Кухня
11,23 м²
Кладовая
4,05 м²
Комната 1
11,49 м²
Остались вопросы?
Напиши нам.
Напиши нам.
Наш ведущий инженер свяжется с вами в ближайшее время.
ДАННЫЕ ПОЛУЧЕНЫ
данные успешно отправлены
Ведущий инженер компании свяжется с вами в ближайшее время.
Дома 1 этаж
Дома 2 этажа
Дома 1 этаж с гаражом
Дома 120 м2
Дома 150 м2
Дома 2 этажа с гаражом
Дома 200 м2
Дома 250 м2
Дома 3 этажа
Дома в скандинавском стиле
Дома в стиле райта
Дома в стиле хайтек
Дома до 100 м2
Дома с гаражом
Дома с мансардой
Дома с сауной
Дома 1 этаж с гаражом и террасой
Дома 1 этаж с террасой
Дома в стиле барнхаус
Дома в стиле шале
Дома из газобетона
Дома из газобетона 1 этаж
Дома из камня
Дома из керамических блоков
Дома из кирпича
Дома из пеноблоков
Дома с зимним садом
Дома с подвалом
Дома с террасой
Дома с цокольным этажом
Фахверковые дома
Дома с бассейном