о проекте

Проект представляет собой современный двухэтажный дом в минималистическом стиле Хайтек. Характерные черты дома включают плоскую крышу, большие окна и чистые линии.

ЭТАЖНОСТЬ
2
ПЛОЩАДЬ
239.88 м²
1
этаж
2
этаж
ПАРАМЕТРЫ ПРОЕКТА
239.88 м²
Общая площадь
239.88 м²
1 Этаж площадь
150,21 м²
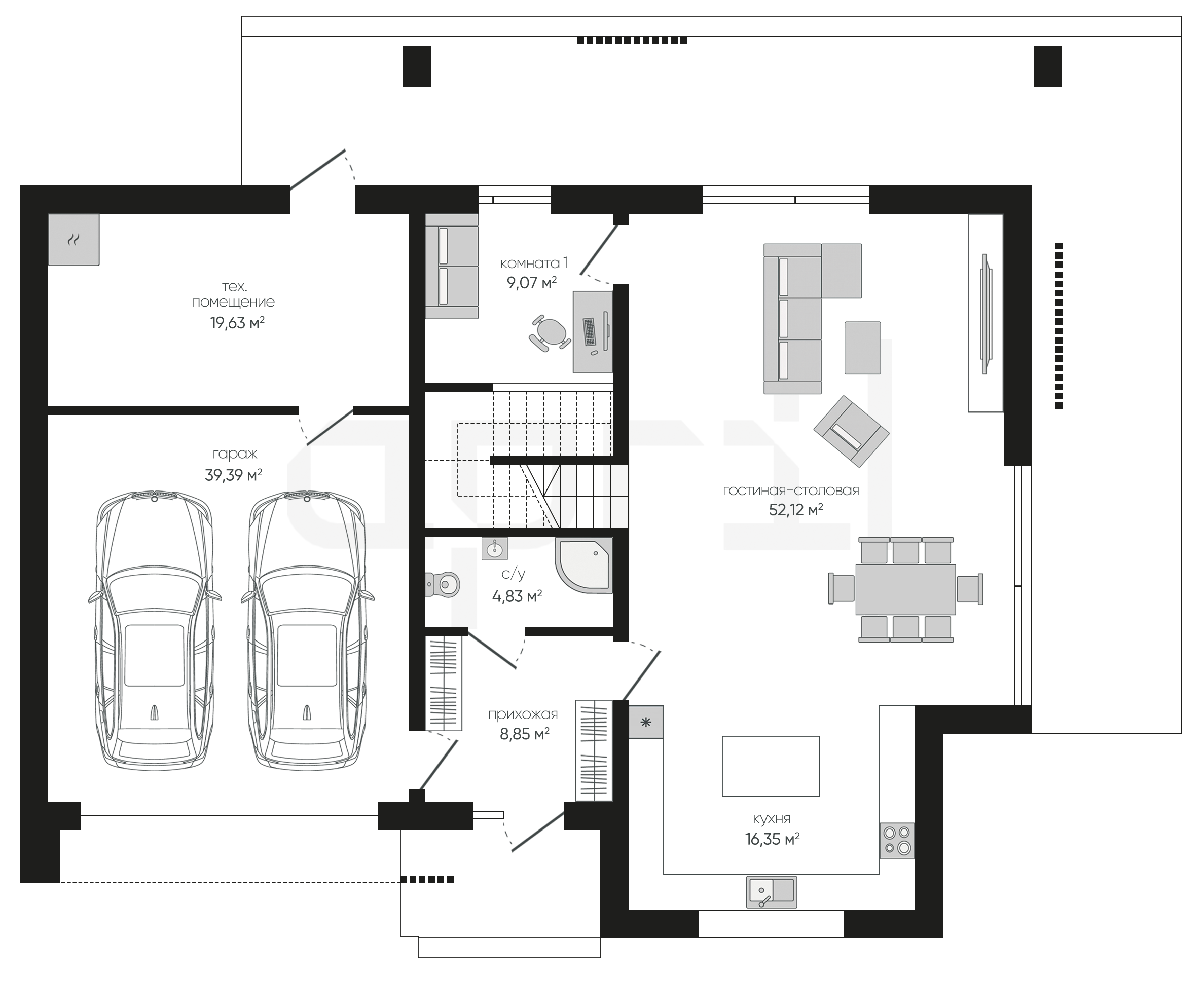
Прихожая
8,85 м²
Гостиная-столовая
52,12 м²
Кухня
16,35 м²
Комната 1
9,07 м²
С/у
4,83 м²
Техническое помещение
19,63 м²
Гараж
39,39 м²
1 этаж
2 этаж
все характеристики
жилой дом
Общая площадь
239.88 м²
1 Этаж площадь
150,21 м²
Прихожая
8,85 м²
Гостиная-столовая
52,12 м²
Кухня
16,35 м²
Комната 1
9,07 м²
С/у
4,83 м²
Техническое помещение
19,63 м²
Гараж
39,39 м²
2 Этаж площадь
89,67 м²
Коридор
8,52 м² (2 эт.)
Ванная
14,28 м² (2 эт.)
Комната 2
18,64 м² (2 эт.)
Комната 3
18,64 м² (2 эт.)
Комната 4
15,78 м² (2 эт.)
Гардероб
10,40 м² (2 эт.)
Прачечная
3,41 м² (2 эт.)
планировка
все характеристики
все характеристики
жилой дом
Общая площадь
239.88 м²
1 Этаж площадь
150,21 м²
Прихожая
8,85 м²
Гостиная-столовая
52,12 м²
Кухня
16,35 м²
Комната 1
9,07 м²
С/у
4,83 м²
Техническое помещение
19,63 м²
Гараж
39,39 м²
2 Этаж площадь
89,67 м²
Коридор
8,52 м² (2 эт.)
Ванная
14,28 м² (2 эт.)
Комната 2
18,64 м² (2 эт.)
Комната 3
18,64 м² (2 эт.)
Комната 4
15,78 м² (2 эт.)
Гардероб
10,40 м² (2 эт.)
Прачечная
3,41 м² (2 эт.)
экстерьер
Остались вопросы?
Напиши нам.
Наш ведущий инженер свяжется с вами в ближайшее время.
Обязательно к заполнению
Обязательно к заполнению
ДАННЫЕ ПОЛУЧЕНЫ

данные успешно отправлены

Ведущий инженер компании свяжется с вами в ближайшее время.
мы используем файлы cookie
Используя сайт april-dom.ru, Вы соглашаетесь с использованием файлов cookie, которые указаны в Политике обработки Персональных данных.
/projects/a428/