а524
Проект небольшого одноэтажного дома с двускатной крышей и террасой.
Визуальный характер здания основан на эффектном контрасте фактур: основные плоскости стен отделаны светло-серой минеральной штукатуркой, а акцентные зоны выделены клинкерной плиткой под насыщенный красный кирпич.
Строгий силуэт подчеркивает антрацитовая черепица, которая гармонирует с темными оконными рамами, а панорамное остекление объединяет уютную гостиную с пространством террасы.
Визуальный характер здания основан на эффектном контрасте фактур: основные плоскости стен отделаны светло-серой минеральной штукатуркой, а акцентные зоны выделены клинкерной плиткой под насыщенный красный кирпич.
Строгий силуэт подчеркивает антрацитовая черепица, которая гармонирует с темными оконными рамами, а панорамное остекление объединяет уютную гостиную с пространством террасы.
о проекте
Этот проект подходит для узких участков и может использоваться как компактное загородное жилье или дачный дом для круглогодичного проживания.
ЭТАЖНОСТЬ
1
ПЛОЩАДЬ
53.51 м²
ПАРАМЕТРЫ ПРОЕКТА
53.51 м²
Общая площадь
53.51 м²
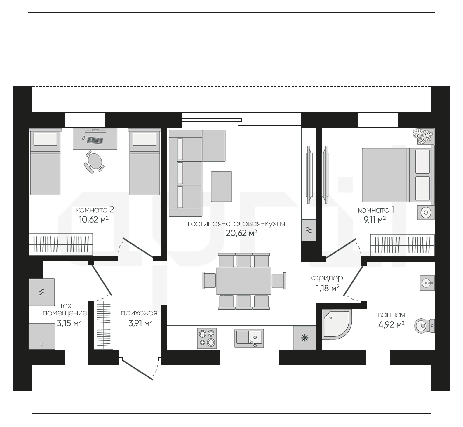
Прихожая
3,91 м²
Гостиная-столовая-кухня
20,62 м²
Коридор
1,18 м²
Комната 1
9,11 м²
Ванная
4,92 м²
Комната 2
10,62 м²
Техническое помещение
3,15 м²
Остались вопросы?
Напиши нам.
Напиши нам.
Наш ведущий инженер свяжется с вами в ближайшее время.
ДАННЫЕ ПОЛУЧЕНЫ
данные успешно отправлены
Ведущий инженер компании свяжется с вами в ближайшее время.
Дома 1 этаж
Дома 2 этажа
Дома 1 этаж с гаражом
Дома 120 м2
Дома 150 м2
Дома 2 этажа с гаражом
Дома 200 м2
Дома 250 м2
Дома 3 этажа
Дома в скандинавском стиле
Дома в стиле райта
Дома в стиле хайтек
Дома до 100 м2
Дома с гаражом
Дома с мансардой
Дома с сауной
Дома 1 этаж с гаражом и террасой
Дома 1 этаж с террасой
Дома в стиле барнхаус
Дома в стиле шале
Дома из газобетона
Дома из газобетона 1 этаж
Дома из камня
Дома из керамических блоков
Дома из кирпича
Дома из пеноблоков
Дома с зимним садом
Дома с подвалом
Дома с террасой
Дома с цокольным этажом
Фахверковые дома
Дома с бассейном