а526
Проект компактного одноэтажного дома с двускатной крышей и террасой.
Фасад дома выполнен в стиле современного минимализма, где основной объем стен покрыт белоснежной штукатуркой, создающей чистый облик. Архитектурную выразительность подчеркивают акцентные вставки из темно-серого клинкерного кирпича. Уютный контраст строгой геометрии создает отделка ниши террасы и входной группы натуральным деревом теплых медовых оттенков, а завершает современный образ графитовая кровля из плоской антрацитовой черепицы.
Фасад дома выполнен в стиле современного минимализма, где основной объем стен покрыт белоснежной штукатуркой, создающей чистый облик. Архитектурную выразительность подчеркивают акцентные вставки из темно-серого клинкерного кирпича. Уютный контраст строгой геометрии создает отделка ниши террасы и входной группы натуральным деревом теплых медовых оттенков, а завершает современный образ графитовая кровля из плоской антрацитовой черепицы.
о проекте
Компактный дом для небольшой семьи — отличная альтернатива городской квартире. Проект сочетает в себе приватность и уют, поэтому отлично подходит как для постоянного проживания, так и в качестве современной дачи.
ЭТАЖНОСТЬ
1
ПЛОЩАДЬ
78.80 м²
ПАРАМЕТРЫ ПРОЕКТА
78.80 м²
Общая площадь
78.80 м²
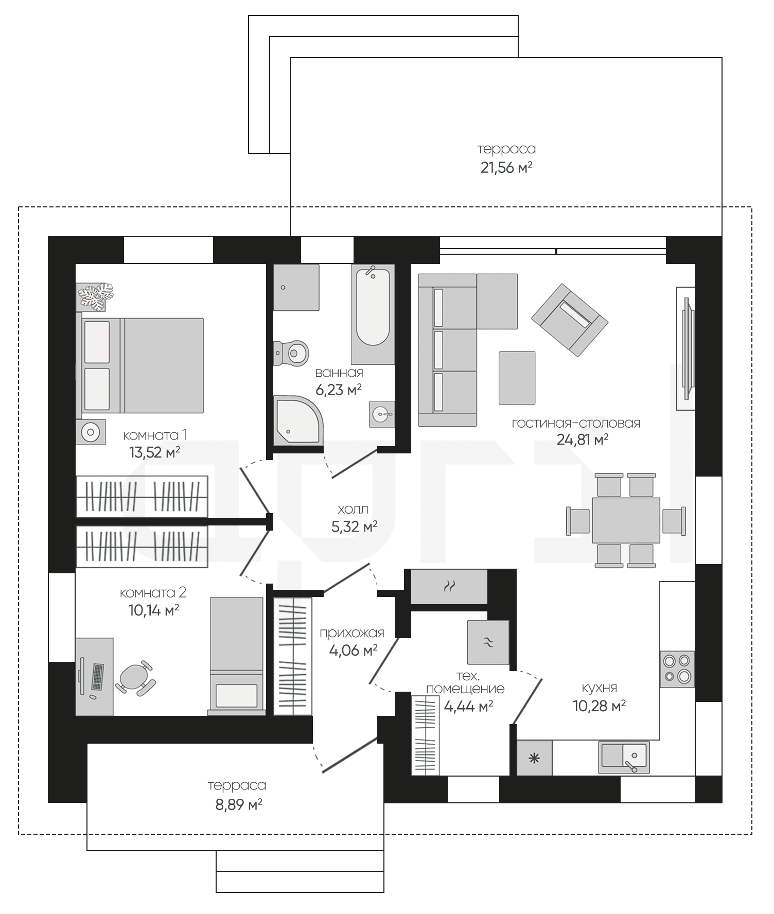
Прихожая
4,06 м²
Холл
5,32 м²
Гостиная-столовая
24,81 м²
Кухня
10,28 м²
Ванная
6,23 м²
Комната 1
13,52 м²
Комната 2
10,14 м²
Техническое помещение
4,44 м²
Остались вопросы?
Напиши нам.
Напиши нам.
Наш ведущий инженер свяжется с вами в ближайшее время.
ДАННЫЕ ПОЛУЧЕНЫ
данные успешно отправлены
Ведущий инженер компании свяжется с вами в ближайшее время.
Дома 1 этаж
Дома 2 этажа
Дома 1 этаж с гаражом
Дома 120 м2
Дома 150 м2
Дома 2 этажа с гаражом
Дома 200 м2
Дома 250 м2
Дома 3 этажа
Дома в скандинавском стиле
Дома в стиле райта
Дома в стиле хайтек
Дома до 100 м2
Дома с гаражом
Дома с мансардой
Дома с сауной
Дома 1 этаж с гаражом и террасой
Дома 1 этаж с террасой
Дома в стиле барнхаус
Дома в стиле шале
Дома из газобетона
Дома из газобетона 1 этаж
Дома из камня
Дома из керамических блоков
Дома из кирпича
Дома из пеноблоков
Дома с зимним садом
Дома с подвалом
Дома с террасой
Дома с цокольным этажом
Фахверковые дома
Дома с бассейном