о проекте

Проект в современном стиле Хайтек был разработан для участков с уклоном, что позволило создать функциональный подвал с доступом прямо с уровня земли.

ЭТАЖНОСТЬ
1
ПЛОЩАДЬ
339.81 м²
-1
этаж
1
этаж
ПАРАМЕТРЫ ПРОЕКТА
339.81 м²
Общая площадь
339.81 м²
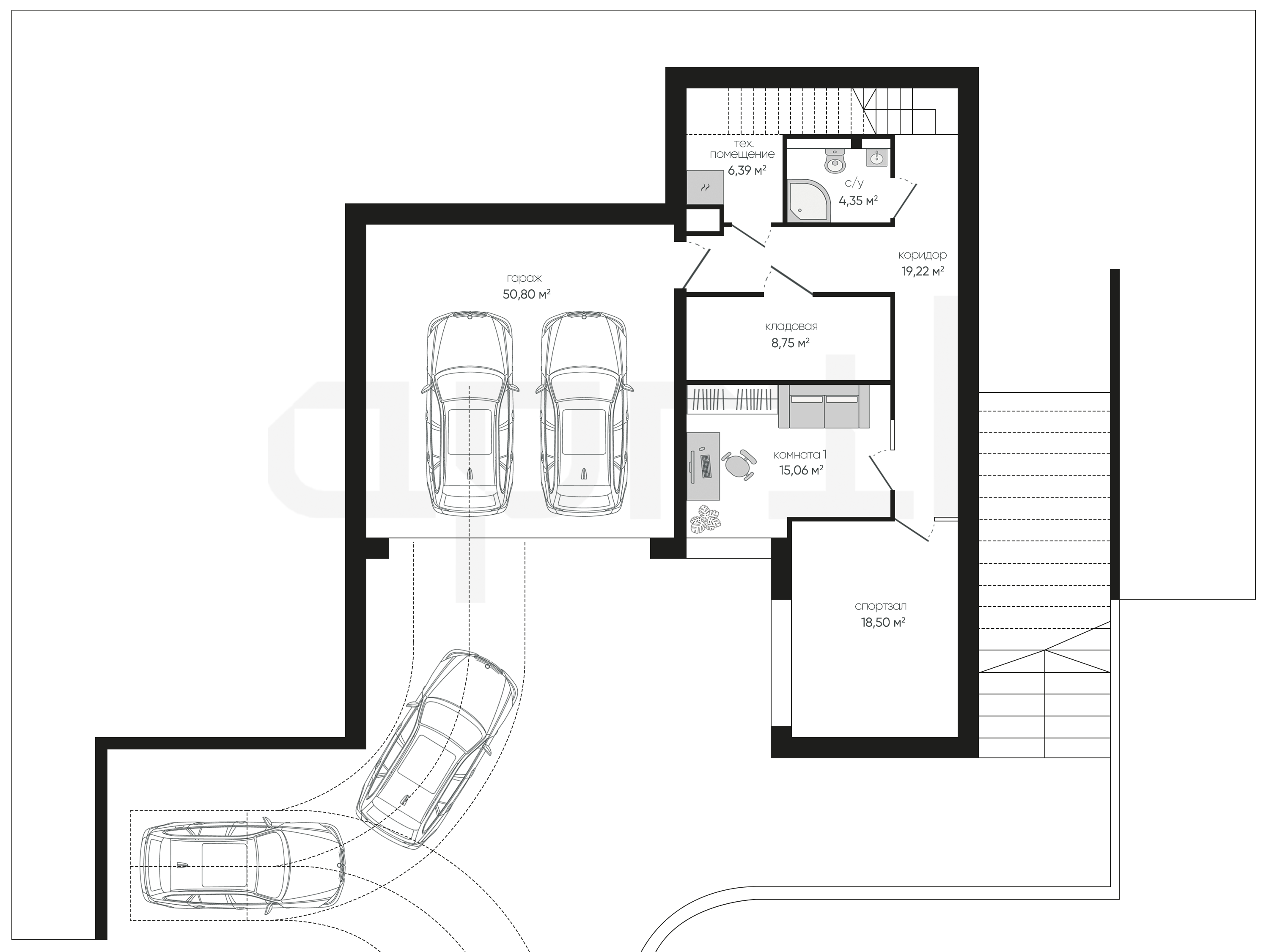
Цокольный этаж
123,07 м²
Коридор
19,22 м² (-1 эт.)
С/у
4,35 м² (-1 эт.)
Спортзал
18,50 м² (-1 эт.)
Комната 1
15,06 м² (-1 эт.)
Кладовая
8,75 м² (-1 эт.)
Техническое помещение
6,39 м² (-1 эт.)
Гараж
50,80 м² (-1 эт.)
-1 этаж
1 этаж
все характеристики
жилой дом
Общая площадь
339.81 м²
Цокольный этаж
123,07 м²
Коридор
19,22 м² (-1 эт.)
С/у
4,35 м² (-1 эт.)
Спортзал
18,50 м² (-1 эт.)
Комната 1
15,06 м² (-1 эт.)
Кладовая
8,75 м² (-1 эт.)
Техническое помещение
6,39 м² (-1 эт.)
Гараж
50,80 м² (-1 эт.)
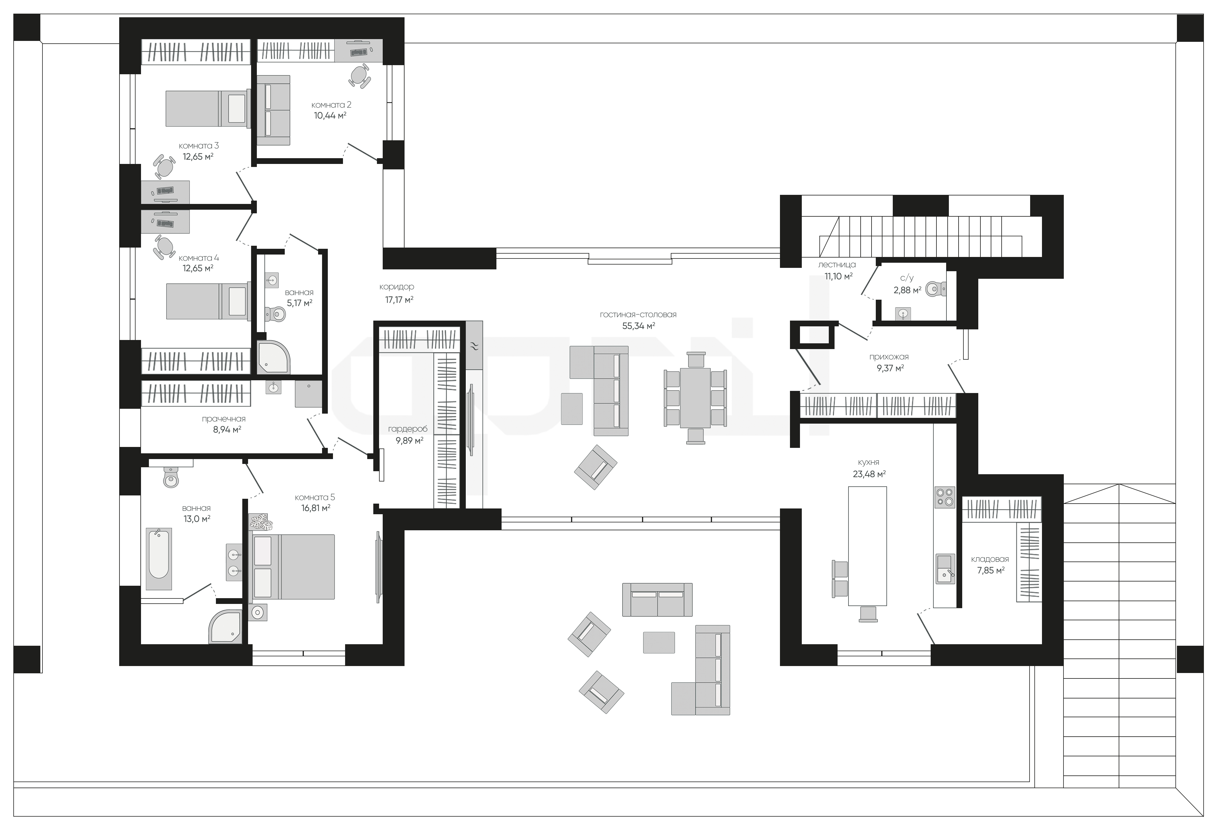
1 Этаж площадь
216,74 м²
Прихожая
9,37 м²
С/у
2,88 м²
Лестница
11,10 м²
Гостиная-столовая
55,34 м²
Кухня
23,48 м²
Кладовая
7,85 м²
Коридор
17,17 м²
Комната 2
10,44 м²
Комната 3
12,65 м²
Комната 4
12,65 м²
Ванная
5,17 м²
Прачечная
8,94 м²
Комната 5
16,81 м²
Гардероб
9,89 м²
Ванная
13 м²
планировка
все характеристики
все характеристики
жилой дом
Общая площадь
339.81 м²
Цокольный этаж
123,07 м²
Коридор
19,22 м² (-1 эт.)
С/у
4,35 м² (-1 эт.)
Спортзал
18,50 м² (-1 эт.)
Комната 1
15,06 м² (-1 эт.)
Кладовая
8,75 м² (-1 эт.)
Техническое помещение
6,39 м² (-1 эт.)
Гараж
50,80 м² (-1 эт.)
1 Этаж площадь
216,74 м²
Прихожая
9,37 м²
С/у
2,88 м²
Лестница
11,10 м²
Гостиная-столовая
55,34 м²
Кухня
23,48 м²
Кладовая
7,85 м²
Коридор
17,17 м²
Комната 2
10,44 м²
Комната 3
12,65 м²
Комната 4
12,65 м²
Ванная
5,17 м²
Прачечная
8,94 м²
Комната 5
16,81 м²
Гардероб
9,89 м²
Ванная
13 м²
экстерьер
Остались вопросы?
Напиши нам.
Наш ведущий инженер свяжется с вами в ближайшее время.
Обязательно к заполнению
Обязательно к заполнению
ДАННЫЕ ПОЛУЧЕНЫ

данные успешно отправлены

Ведущий инженер компании свяжется с вами в ближайшее время.
мы используем файлы cookie
Используя сайт april-dom.ru, Вы соглашаетесь с использованием файлов cookie, которые указаны в Политике обработки Персональных данных.
/projects/a380/