а467
Проект современного двухэтажного дома с гаражом и террасой.
В здании используется плоская эксплуатируемая кровля.
Дизайн построен на контрасте материалов и цветов. Верхний ярус облицован терракотовым кирпичом, что добавляет теплоты и природной эстетики. Нижний ярус и несущие конструкции отделаны фасадной штукатуркой в нейтральной бело-серой гамме, что подчеркивает легкость архитектурных форм и современный облик дома.
В здании используется плоская эксплуатируемая кровля.
Дизайн построен на контрасте материалов и цветов. Верхний ярус облицован терракотовым кирпичом, что добавляет теплоты и природной эстетики. Нижний ярус и несущие конструкции отделаны фасадной штукатуркой в нейтральной бело-серой гамме, что подчеркивает легкость архитектурных форм и современный облик дома.
о проекте
Проект характеризуется функциональностью, использованием натуральных материалов и стремлением к гармонии с природой, спроектированный в стиле Хайтек с элементами минимализма.
ЭТАЖНОСТЬ
2
ПЛОЩАДЬ
241.86 м²
ПАРАМЕТРЫ ПРОЕКТА
241.86 м²
Общая площадь
241.86 м²
1 Этаж площадь
159,65 м²
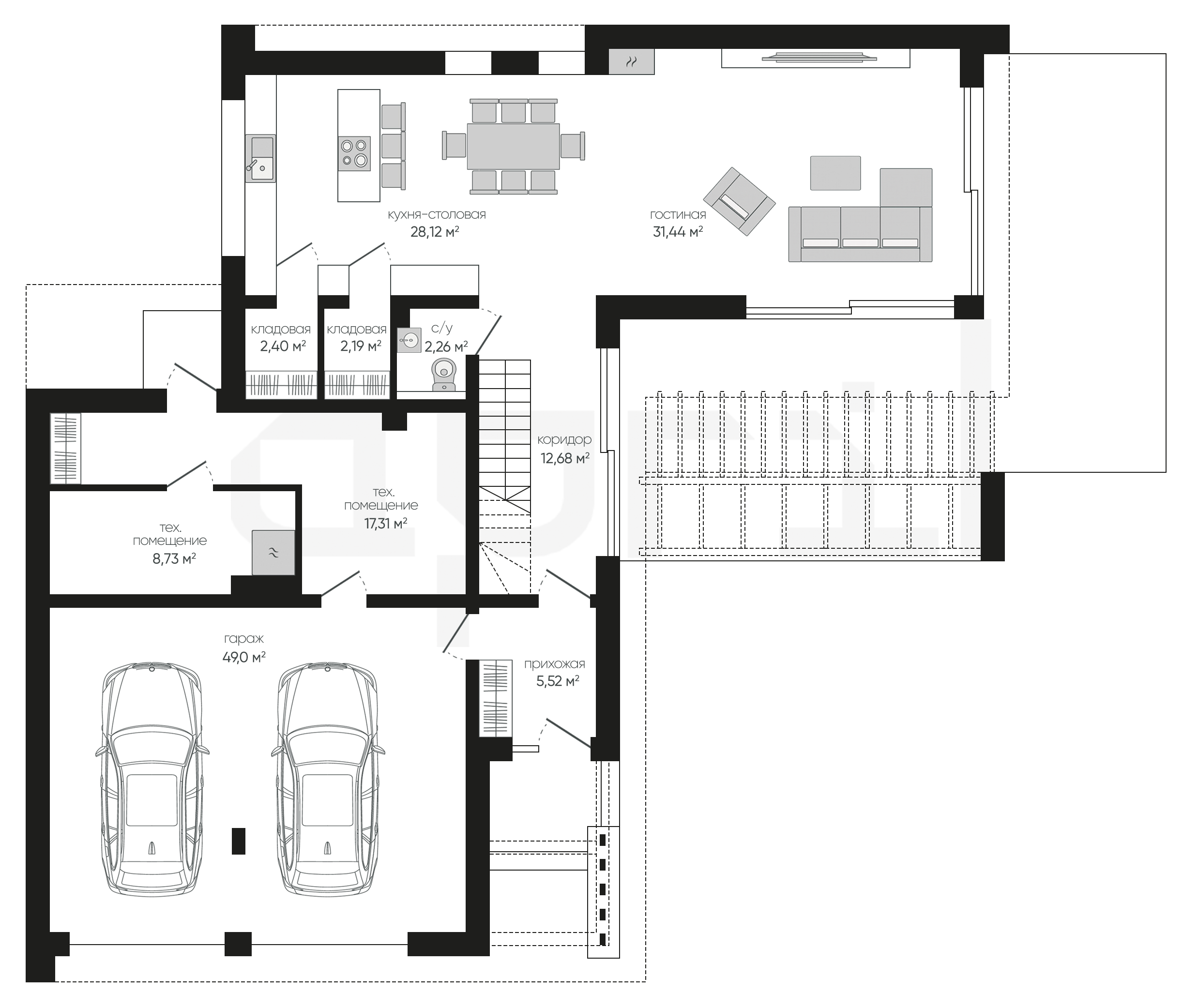
Прихожая
5,52 м²
Коридор
12,68 м²
Гостиная
31,44 м²
Кухня-столовая
28,12 м²
Кладовая
2,19 м²
Кладовая
2,40 м²
С/у
2,26 м²
Остались вопросы?
Напиши нам.
Напиши нам.
Наш ведущий инженер свяжется с вами в ближайшее время.
ДАННЫЕ ПОЛУЧЕНЫ
данные успешно отправлены
Ведущий инженер компании свяжется с вами в ближайшее время.
Дома 1 этаж
Дома 2 этажа
Дома 1 этаж с гаражом
Дома 120 м2
Дома 150 м2
Дома 2 этажа с гаражом
Дома 200 м2
Дома 250 м2
Дома 3 этажа
Дома в скандинавском стиле
Дома в стиле райта
Дома в стиле хайтек
Дома до 100 м2
Дома с гаражом
Дома с мансардой
Дома с сауной
Дома 1 этаж с гаражом и террасой
Дома 1 этаж с террасой
Дома в стиле барнхаус
Дома в стиле шале
Дома из газобетона
Дома из газобетона 1 этаж
Дома из камня
Дома из керамических блоков
Дома из кирпича
Дома из пеноблоков
Дома с зимним садом
Дома с подвалом
Дома с террасой
Дома с цокольным этажом
Фахверковые дома
Дома с бассейном